Elegant U-Shaped House Plan — 4 Beds, Courtyard Pool, 318 m² (3,423 sq ft), 1-Car Garage

318 m² total area / 3423 ft² 2 floors 4 bedrooms 5.5 bathrooms
Elegant U-Shaped House Plan — 4 Beds, Courtyard Pool, 318 m² (3,423 sq ft), 1-Car Garage
Click to view

Description

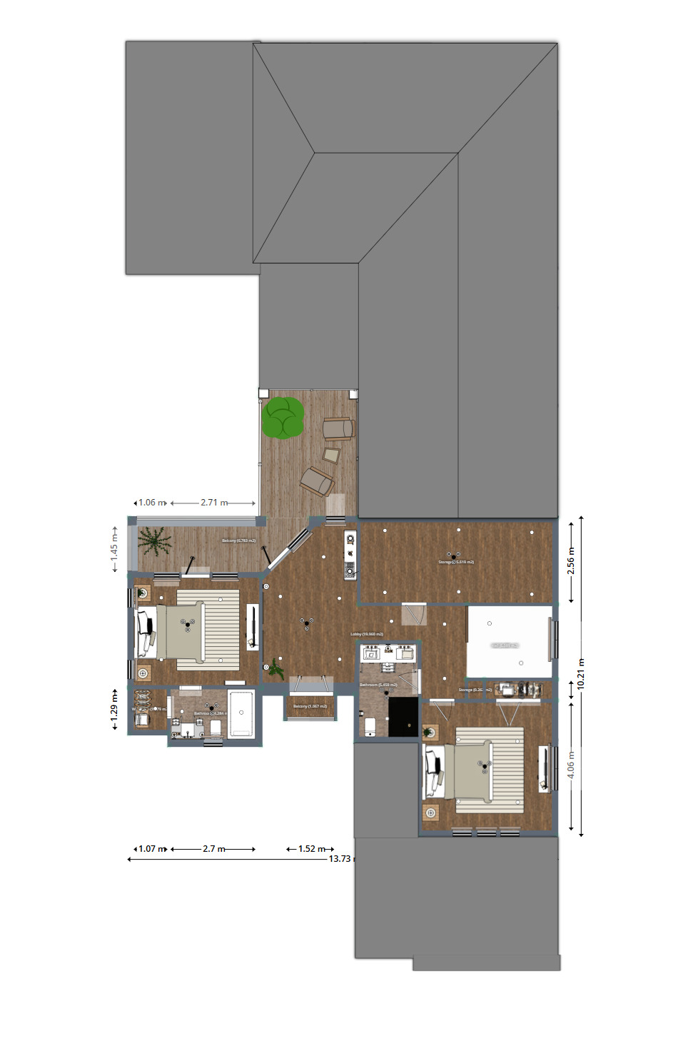
Discover refined indoor–outdoor living in this elegant two-story U-shaped house plan offering 3,423 sq ft (318 m²). The main level wraps around a sunny courtyard pool, creating a resort-like center that connects the open-concept great room and gourmet island kitchen to a private owner’s suite with spa bath and pool views. Upstairs, two additional ensuite bedrooms open to balconies and bonus storage, bringing the total to 4 bedrooms and 5.5 baths—ideal for hosting guests or giving everyone privacy. A dedicated home office, plentiful closets, and mostly 9' ceilings support everyday comfort, while the oversized 1-car garage adds practical space without dominating the facade. Home Plan Highlights: - U-shaped layout centered on a courtyard pool for true indoor–outdoor life - Open great room + gourmet island kitchen for entertaining - Private owner’s suite with spa bath and courtyard views - Two upstairs ensuite bedrooms with balconies + extra storage - Dedicated home office and abundant closet space Key Specs: - Total heated area: 3,423 sq ft (318 m²) - 2 floors, 4 bedrooms, 5.5 bathrooms - 1-car garage (oversized) - Dimensions: approx. 44' 3" (width) x 95' 2" (depth); height about 27' 11" - Main floor: ~2,422 sq ft (9' ceilings); upper: ~1,001 sq ft (8'-6" ceilings)

Interested in this plan?

Contact us to get full blueprints, construction estimate, or adapt this plan to your plot and needs.

Request more information

Visualization gallery

Blueprints