The project of a huge country cottage with a garage for two cars

422 m² total area / 4542 ft² 2 floors 4 bedrooms 3 bathrooms
The project of a huge country cottage with a garage for two cars
Click to view

Description

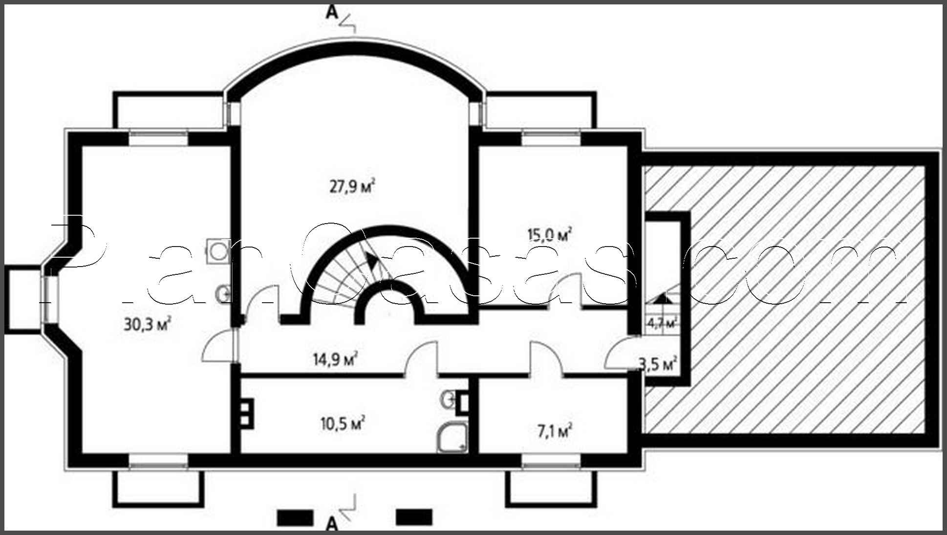
The project of a huge country cottage with a garage for two cars Number of floors: 3 Total area: 422.10 m2 Living Area: 187.90 m2 House height: 9.20 m Ceiling Height: 2.80 m Roof Angle: 45 ° Roof area: 343.00 m2 Cubic capacity: 1613.00 m3 Number of bedrooms: 4 Number of bathrooms: 3 Garage: Two-car garage Minimum plot size (length): 29.70 m Minimum plot size (width): 22.30 m Built-up area: 197 m2 Materials: Walls: aerated concrete, ceramic blocks Overlap: monolithic overlap Roofing: ceramic tile, metal tile, cement-sand tile Foundation: monolithic tape

Interested in this plan?

Contact us to get full blueprints, construction estimate, or adapt this plan to your plot and needs.

Request more information

Visualization gallery