The project of a modern house on two floors in a classic style

194 m² total area / 2088 ft² 2 floors 4 bedrooms 3 bathrooms
The project of a modern house on two floors in a classic style
Click to view

Description

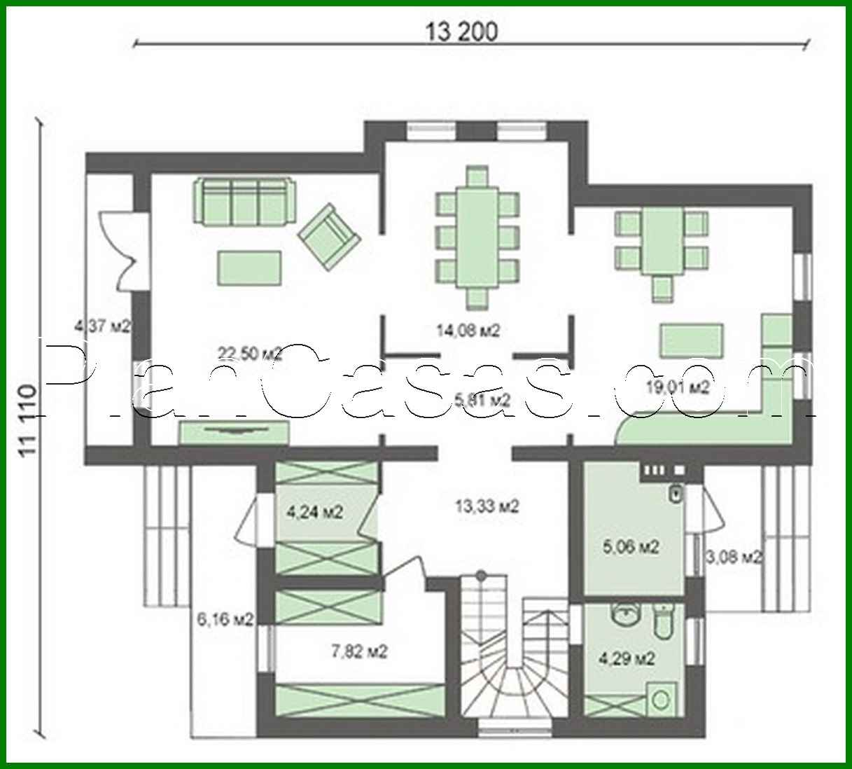
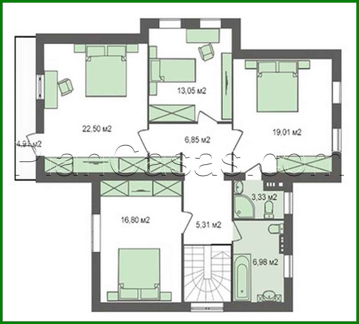
The project of a modern house on two floors in a classic style Number of floors: 2 Total area: 193.70 m2 Ceiling Height: 2.80 m Number of bedrooms: 4 Number of bathrooms: 3 Minimum plot size (length): 22.20 m Minimum plot size (width): 19.20 m Materials: Walls: aerated concrete, ceramic blocks Overlap: monolithic overlap Roofing: ceramic tile, metal tile, cement-sand tile Foundation: monolithic tape

Interested in this plan?

Contact us to get full blueprints, construction estimate, or adapt this plan to your plot and needs.

Request more information

Visualization gallery