Simple Attic House Project

181 m² total area / 1948 ft² 2 floors 3 bedrooms 2 bathrooms
Simple Attic House Project
Click to view

Description

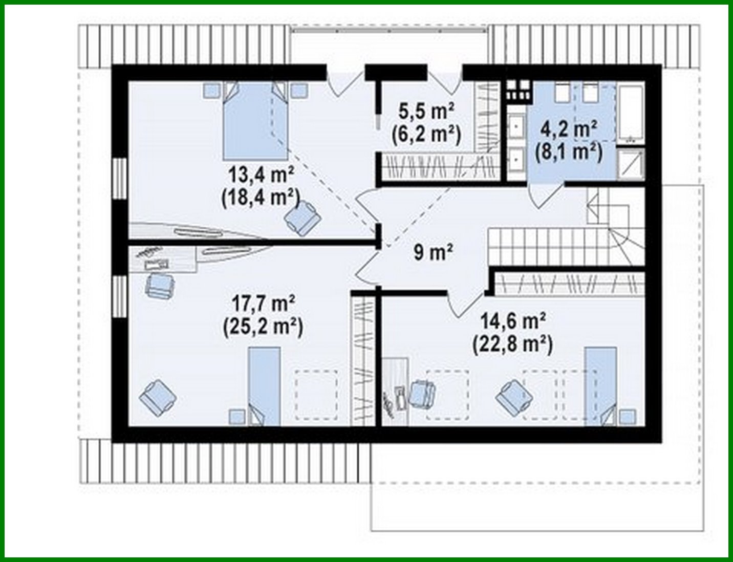
Simple Attic House Project Number of floors: 2 Total area: 181.00 m2 Living Area: 156.00 m2 House height: 7.52 m Ceiling Height: 2.80 m Roof Angle: 35 ° Roof area: 213.00 m2 Cubic capacity: 456.00 m3 Number of bedrooms: 3 Number of bathrooms: 2 Minimum plot size (length): 20.40 m Minimum plot size (width): 18.10 m Built-up area: 130 m2 Materials: Walls: aerated concrete, ceramic blocks Overlap: monolithic overlap Roofing: ceramic tile, metal tile, cement-sand tile Foundation: monolithic tape band

Interested in this plan?

Contact us to get full blueprints, construction estimate, or adapt this plan to your plot and needs.

Request more information

Visualization gallery