Beautiful mansion with 2 car garage

265 m² total area / 2852 ft² 2 floors 5 bedrooms 3 bathrooms
Beautiful mansion with 2 car garage
Click to view

Description

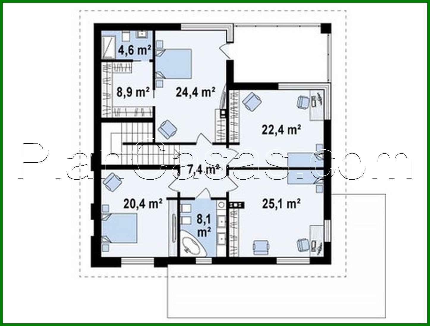
Beautiful mansion with 2 car garage Number of floors: 2 Total area: 264.50 m2 Living Area: 225.10 m2 House height: 8.49 m Ceiling Height: 2.80 m Roof Angle: 20 ° Roof area: 267.00 m2 Cubic capacity: 695.00 m3 Number of bedrooms: 5 Number of bathrooms: 3 Garage: Two-car garage Minimum plot size (length): 23.00 m Minimum plot size (width): 24.00 m Built-up area: 205 m2 Materials: Walls: aerated concrete, ceramic blocks Overlap: monolithic overlap Roofing: ceramic tile, metal tile, cement-sand tile Foundation: monolithic tape band

Interested in this plan?

Contact us to get full blueprints, construction estimate, or adapt this plan to your plot and needs.

Request more information

Visualization gallery