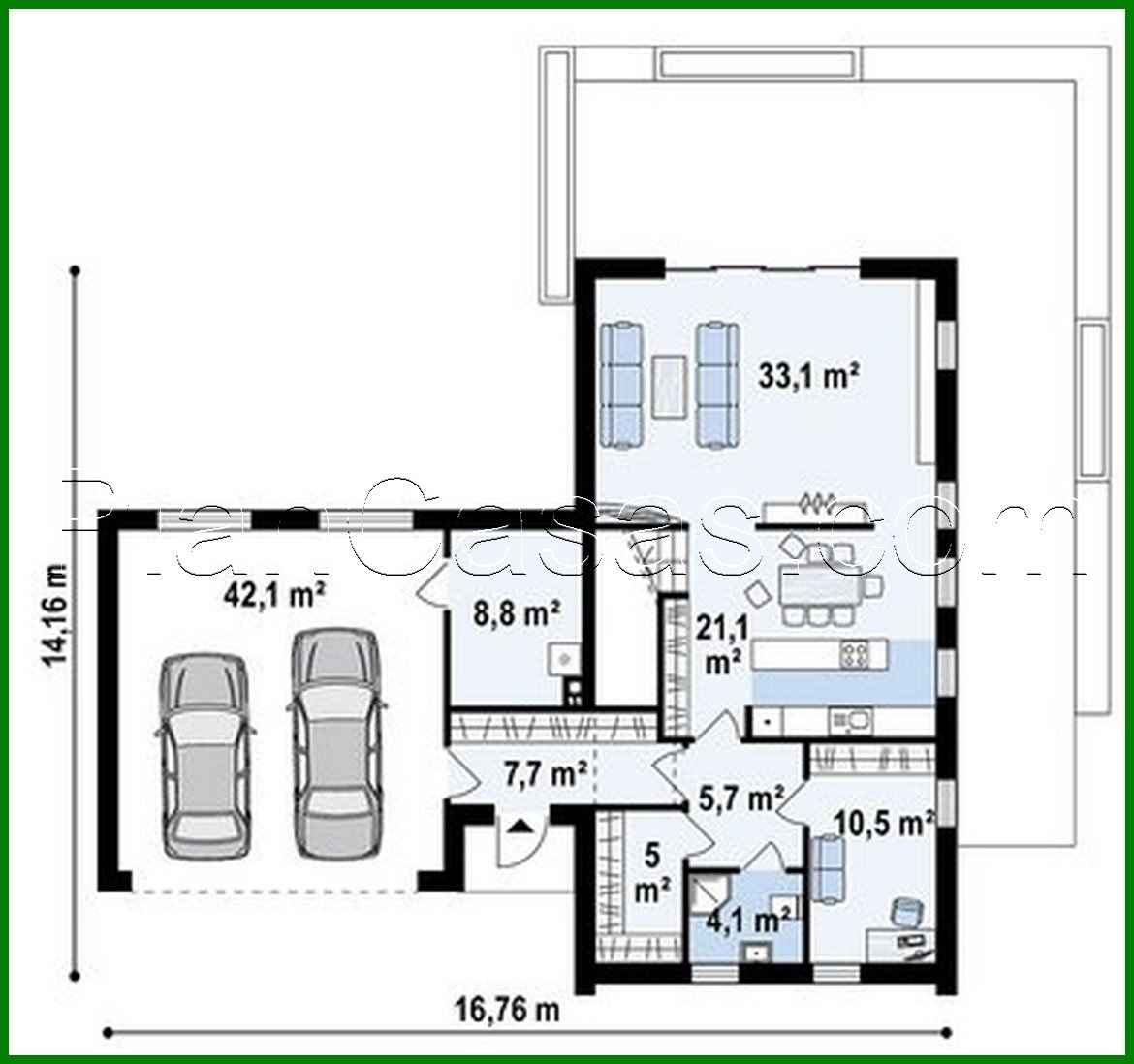
Cottage with an attic with a garage for two cars

219 m² total area / 2357 ft² 2 floors 4 bedrooms 2 bathrooms
Cottage with an attic with a garage for two cars
Click to view

Description

Cottage with an attic with a garage for two cars Number of floors: 2 Total area: 219.30 m2 Living Area: 163.50 m2 House height: 8.51 m Ceiling Height: 2.80 m Roof Angle: 40 ° Number of bedrooms: 4 Number of bathrooms: 2 Garage: Two-car garage Minimum plot size (length): 22.50 m Minimum plot size (width): 24.50 m Materials: Walls: aerated concrete, ceramic blocks Overlap: monolithic overlap Roofing: ceramic tile, metal tile, cement-sand tile Foundation: monolithic tape band

Interested in this plan?

Contact us to get full blueprints, construction estimate, or adapt this plan to your plot and needs.

Request more information

Visualization gallery