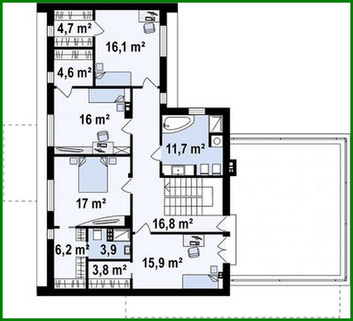
Plan of a modern mansion with an area of ​​283 square meters. m with an attached garage for two cars

283 m² total area / 3046 ft² 2 floors 5 bedrooms 3 bathrooms
Plan of a modern mansion with an area of ​​283 square meters. m with an attached garage for two cars
Click to view

Description

Plan of a modern mansion with an area of ​​283 square meters. m with an attached garage for two cars Number of floors: 2 Total area: 283.20 m2 Living Area: 238.60 m2 House height: 7.00 m Ceiling Height: 2.80 m Roof Angle: 3 ° / 1.5 ° ° Roof area: 198.10 m2 Cubic capacity: 781.00 m3 Number of bedrooms: 5 Number of bathrooms: 3 Garage: Two-car garage Minimum plot size (length): 24.00 m Minimum plot size (width): 25.00 m Built-up area: 215.8 m2 Materials: Walls: aerated concrete, ceramic blocks Overlap: monolithic overlap Roofing: ceramic tile, metal tile, cement-sand tile Foundation: monolithic tape band

Interested in this plan?

Contact us to get full blueprints, construction estimate, or adapt this plan to your plot and needs.

Request more information

Visualization gallery