The project of a two-story house on 133 square meters m with french balconies

133 m² total area / 1432 ft² 2 floors 4 bedrooms 2 bathrooms
The project of a two-story house on 133 square meters m with french balconies
Click to view

Description

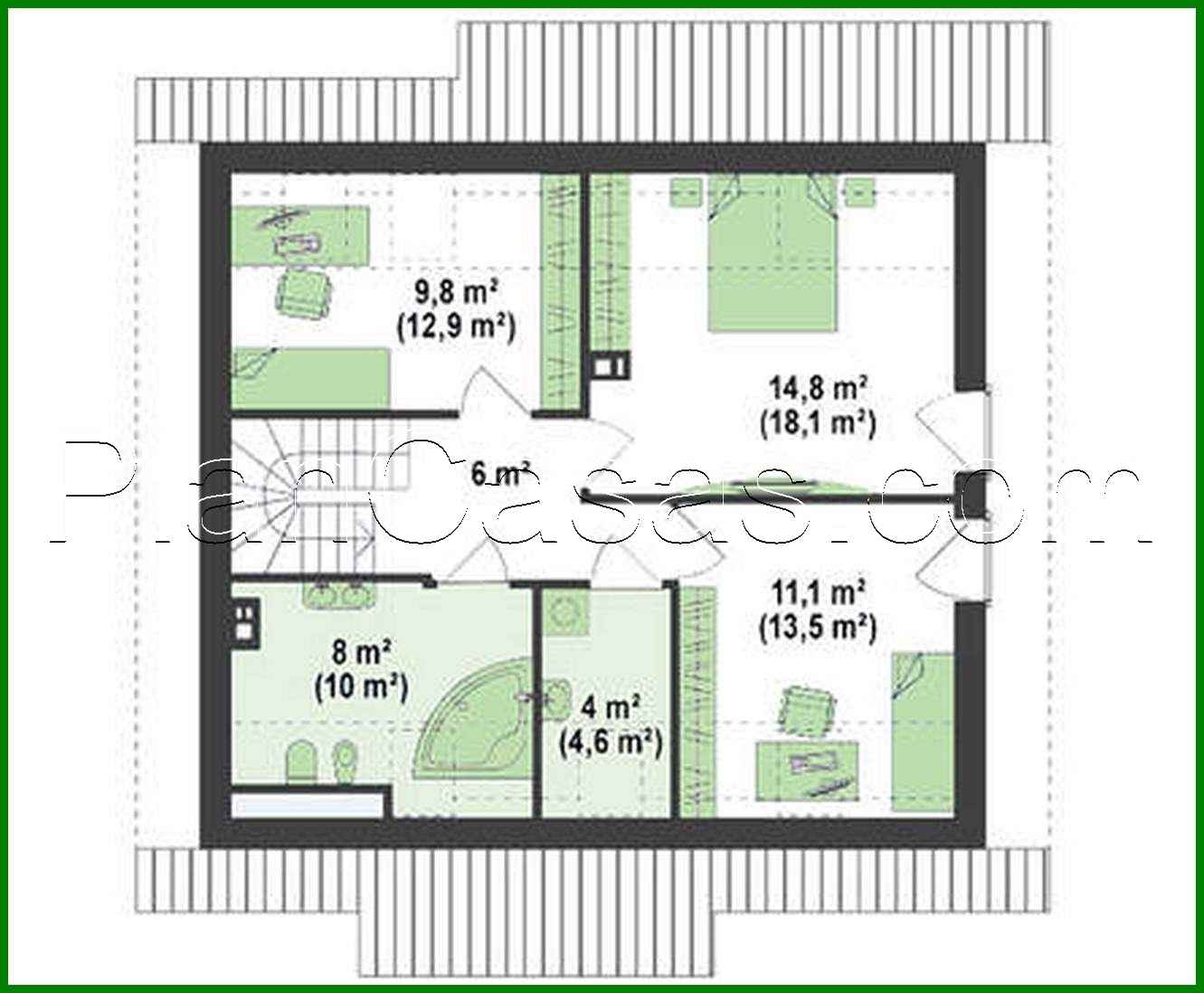
The project of a two-story house on 133 square meters m with french balconies Number of floors: 2 Total area: 133.10 m2 Living Area: 121.60 m2 House height: 8.27 m Ceiling Height: 2.80 m Roof Angle: 40 ° ° Roof area: 160.80 m2 Number of bedrooms: 4 Number of bathrooms: 2 Minimum plot size (length): 17.84 m Minimum plot size (width): 16.84 m Built-up area: 87 m2 Materials: Walls: aerated concrete, ceramic blocks Overlap: monolithic overlap Roofing: metal tile, ceramic tile, bitumen Foundation: monolithic tape

Interested in this plan?

Contact us to get full blueprints, construction estimate, or adapt this plan to your plot and needs.

Request more information

Visualization gallery