House project with a beautiful attic

172 m² total area / 1851 ft² 1 floor 3 bedrooms 2 bathrooms
House project with a beautiful attic
Click to view

Description

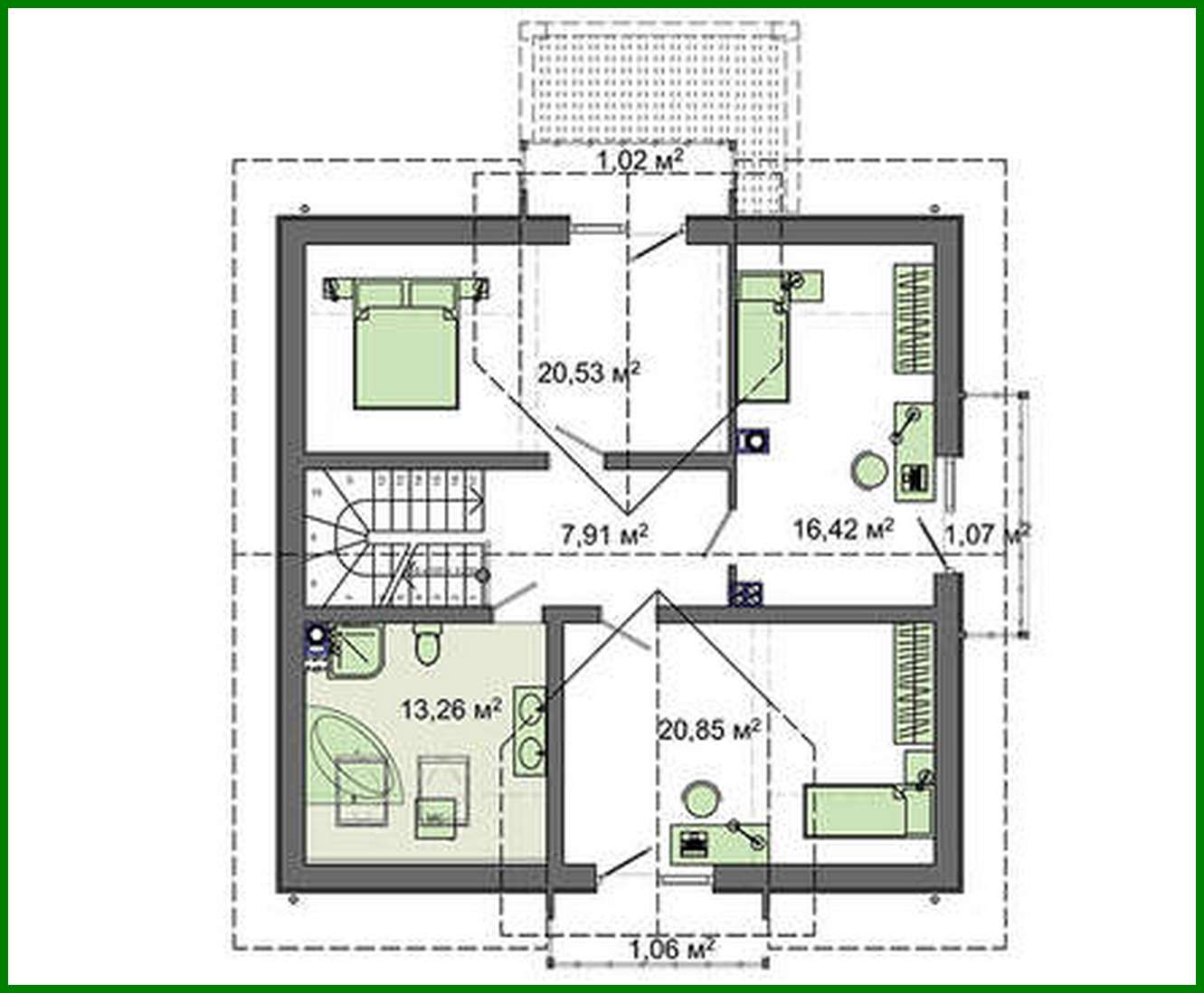
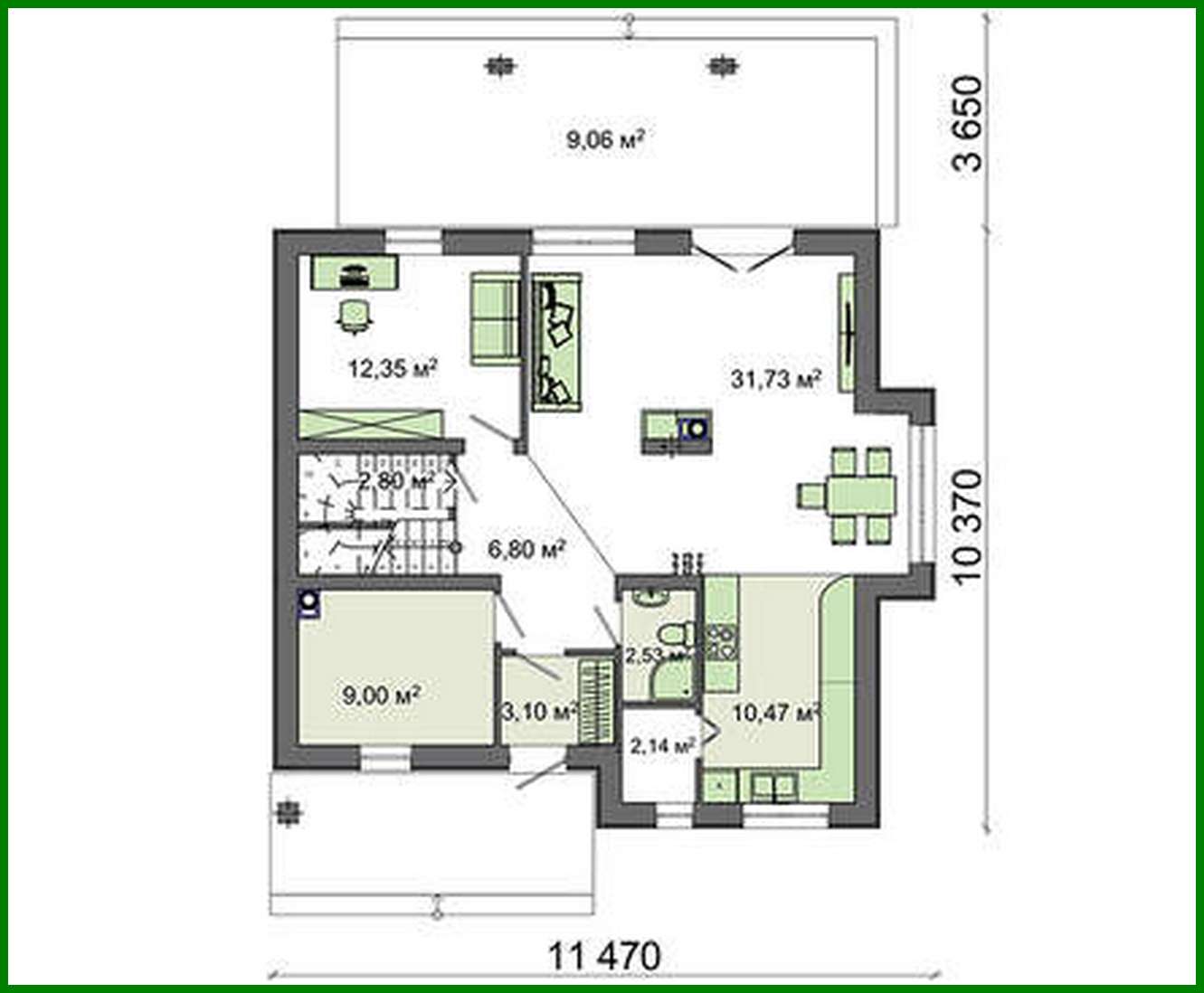
House project with a beautiful attic Number of floors: 2 Total area: 172.10 m2 Living Area: 101.88 m2 House height: 8.11 m Ceiling Height: 2.80 m Roof Angle: 35 ° Roof area: 182.00 m2 Number of bedrooms: 3 Number of bathrooms: 2 Minimum plot size (length): 18.50 m Minimum plot size (width): 19.00 m Built-up area: 159.25 m2 SIZES OF ROOMS Materials: Walls: aerated concrete blocks Overlap: monolithic overlap Roofing: metal tile, ceramic tile, bitumen Foundation: monolithic tape

Interested in this plan?

Contact us to get full blueprints, construction estimate, or adapt this plan to your plot and needs.

Request more information

Visualization gallery