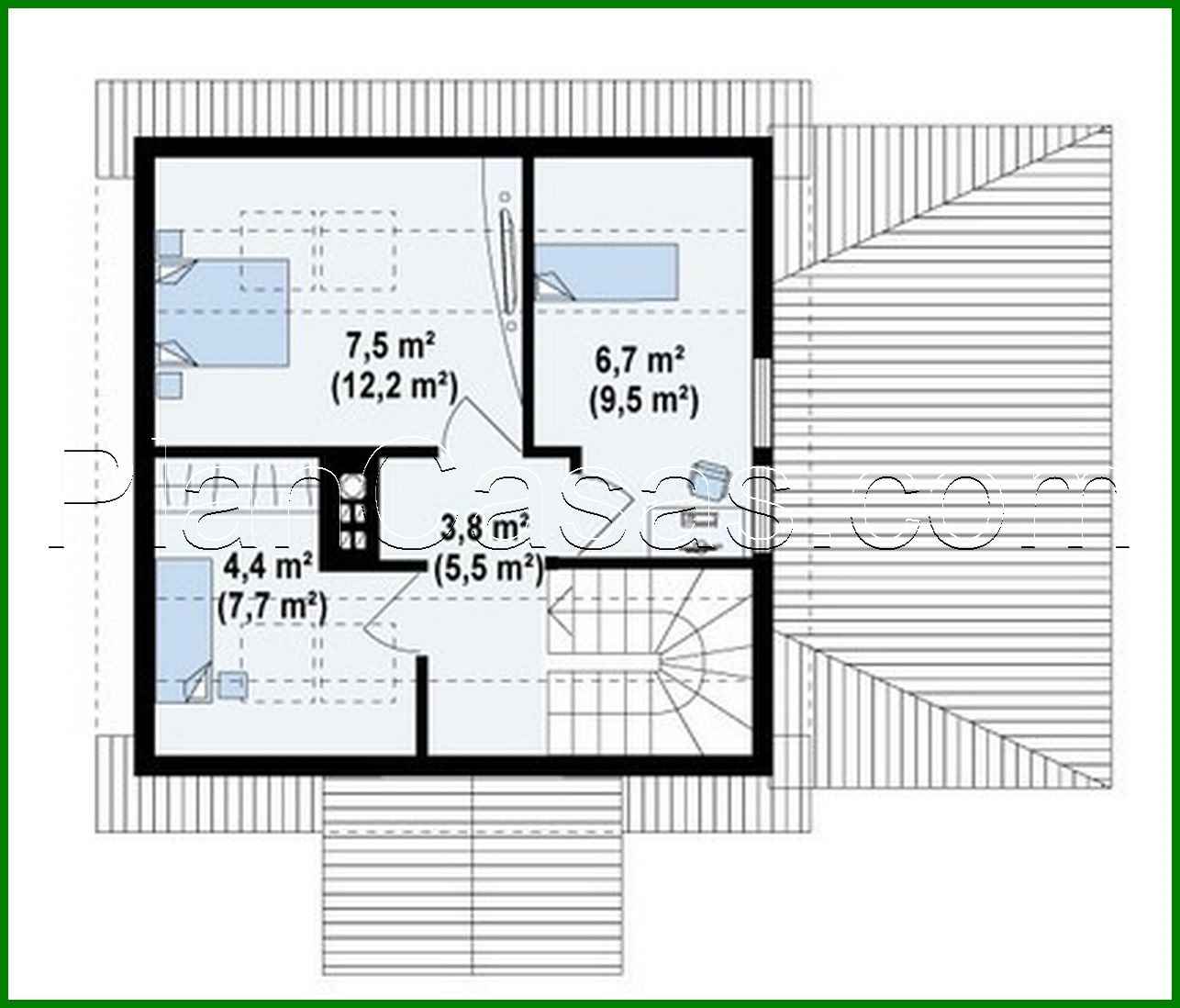
Small house project with attic and side terrace

74 m² total area / 797 ft² 1 floor 3 bedrooms 1 bathroom
Small house project with attic and side terrace
Click to view

Description

Small house project with attic and side terrace Number of floors: 2 Total area: 74.00 m2 Living Area: 61.50 m2 House height: 7.00 m Ceiling Height: 2.80 m Roof Angle: 45 ° Roof area: 118.00 m2 Cubic capacity: 179.00 m3 Number of bedrooms: 3 Number of bathrooms: 1 Minimum plot size (length): 14.90 m Minimum plot size (width): 14.00 m Materials: Walls: aerated concrete, ceramic blocks Overlap: monolithic overlap Roofing: ceramic tile, metal tile, cement-sand tile Foundation: monolithic tape band

Interested in this plan?

Contact us to get full blueprints, construction estimate, or adapt this plan to your plot and needs.

Request more information

Visualization gallery