House project for a narrow plot with a terrace above the garage

214 m² total area / 2303 ft² 2 floors 3 bedrooms 3 bathrooms
House project for a narrow plot with a terrace above the garage
Click to view

Description

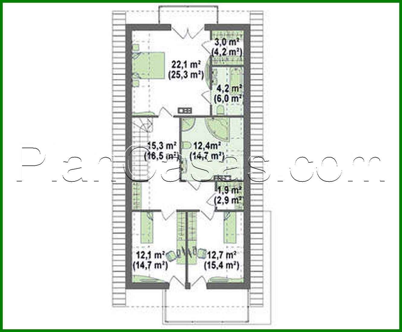
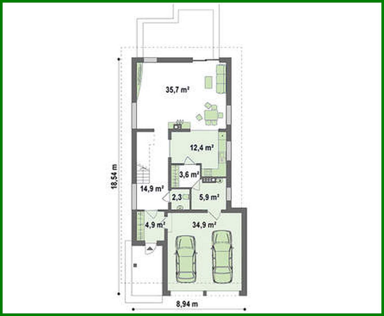
House project for a narrow plot with a terrace above the garage Number of floors: 2 Total area: 214.00 m2 Living Area: 163.00 m2 House height: 7.91 m Ceiling Height: 2.80 m Roof Angle: 40 ° Roof area: 212.00 m2 Cubature: 544.00 m3 Number of bedrooms: 3 Number of bathrooms: 3 Garage: Two-car garage Minimum plot size (length): 15.00 m Minimum plot size (width): 26.00 m Materials: Walls: aerated concrete, ceramic blocks Overlap: monolithic overlap Roofing: ceramic tile, metal tile, cement-sand tile Foundation: monolithic tape

Interested in this plan?

Contact us to get full blueprints, construction estimate, or adapt this plan to your plot and needs.

Request more information

Visualization gallery