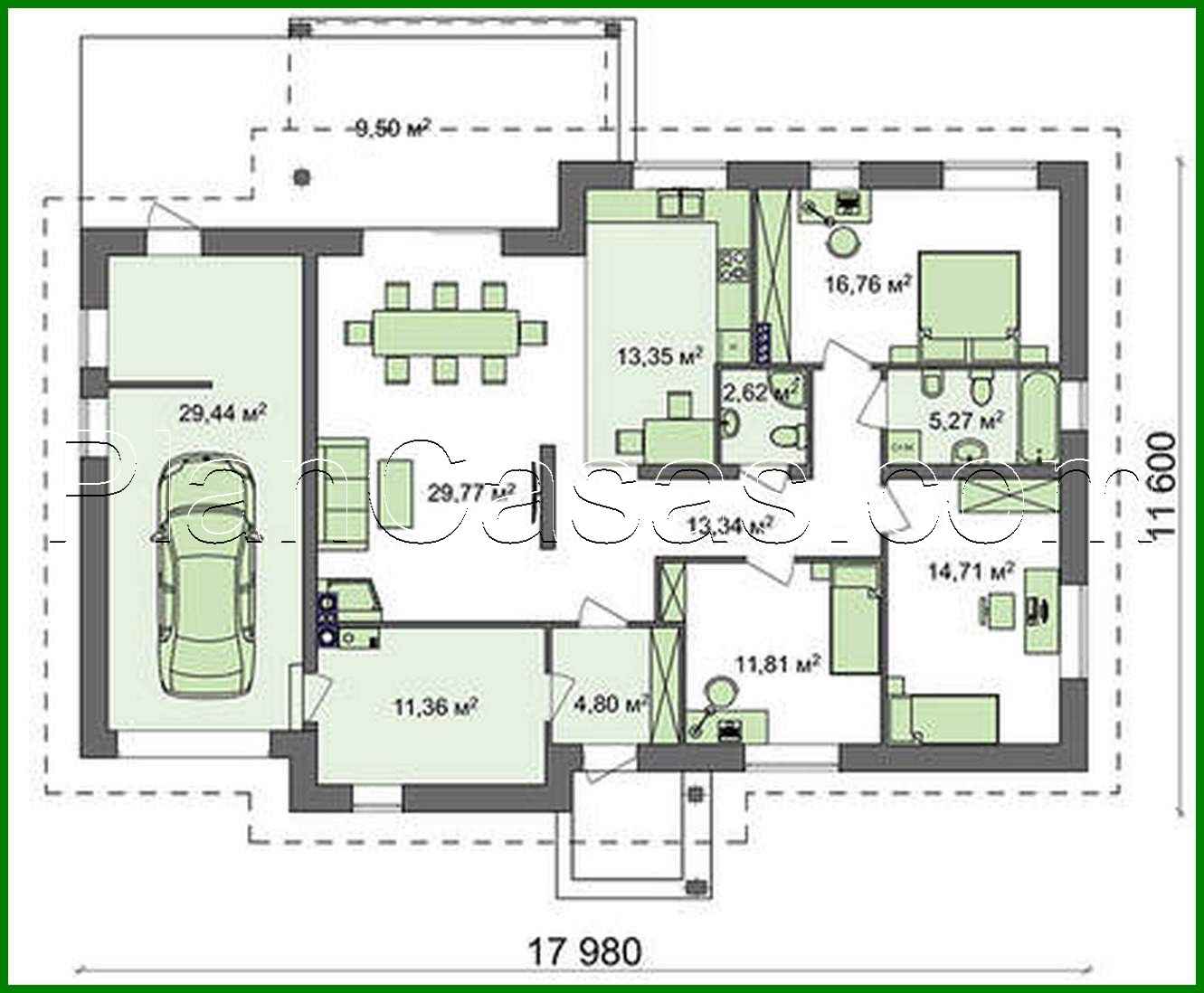
Three-bedroom single-story house project with garage

163 m² total area / 1755 ft² 1 floor 3 bedrooms 2 bathrooms
Three-bedroom single-story house project with garage
Click to view

Description

Three-bedroom single-story house project with garage Number of floors: 1 Total area: 162.73 m2 Living Area: 73.05 m2 House height: 7.00 m Ceiling Height: 2.80 m Roof Angle: 30 ° Roof area: 264.00 m2 Cubature: 385.00 m3 Number of bedrooms: 3 Number of bathrooms: 2 Garage: Garage for one car Minimum plot size (length): 25.00 m Minimum plot size (width): 19.00 m Materials: Walls: aerated concrete, ceramic blocks Ceiling: on wooden beams Roofing: ceramic tile, metal tile, cement-sand tile Foundation: monolithic tape

Interested in this plan?

Contact us to get full blueprints, construction estimate, or adapt this plan to your plot and needs.

Request more information

Visualization gallery