House project with interesting windows and a garage for two cars

259 m² total area / 2788 ft² 2 floors 3 bedrooms 4 bathrooms
House project with interesting windows and a garage for two cars
Click to view

Description

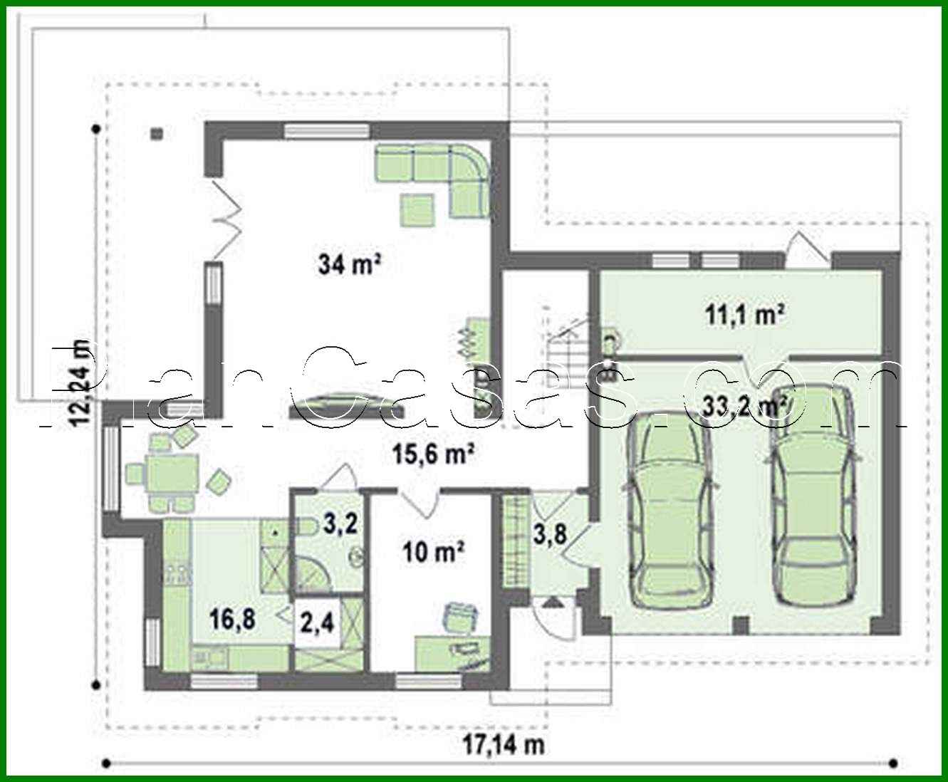
House project with interesting windows and a garage for two cars Number of floors: 2 Total area: 259.00 m2 Living Area: 148.00 m2 House height: 7.82 m Ceiling Height: 2.80 m Roof Angle: 40 ° / 35 ° Roof area: 285.00 m2 Cubic capacity: 623.00 m3 Number of bedrooms: 3 Number of bathrooms: 4 Garage: Two-car garage Minimum plot size (length): 24.00 m Minimum plot size (width): 20.00 m Materials: Walls: aerated concrete, ceramic blocks Overlap: monolithic overlap Roofing: ceramic tile, metal tile, cement-sand tile Foundation: monolithic tape

Interested in this plan?

Contact us to get full blueprints, construction estimate, or adapt this plan to your plot and needs.

Request more information

Visualization gallery