Cottage project with built-in garage and attic

173 m² total area / 1862 ft² 1 floor 4 bedrooms 2 bathrooms
Cottage project with built-in garage and attic
Click to view

Description

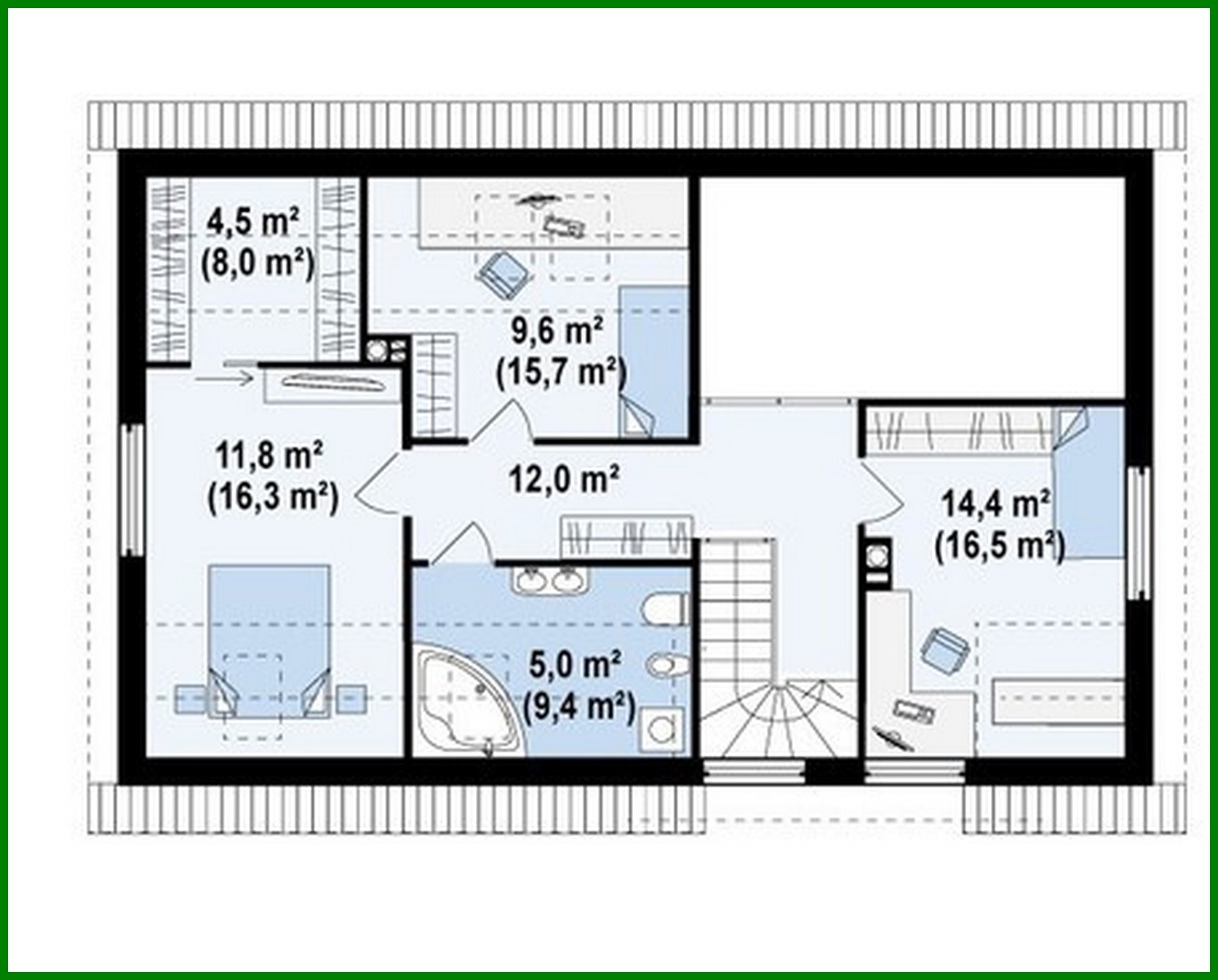
Cottage project with built-in garage and attic Number of floors: 2 Total area: 173.00 m2 Living Area: 126.50 m2 House height: 7.42 m Ceiling Height: 2.80 m Roof Angle: 37 ° Roof area: 183.00 m2 Cubic capacity: 431.00 m3 Number of bedrooms: 4 Number of bathrooms: 2 Garage: Garage for one car Minimum plot size (length): 22.04 m Minimum plot size (width): 16.64 m Materials: Walls: aerated concrete, ceramic blocks Overlap: monolithic overlap Roofing: ceramic tile, metal tile, cement-sand tile Foundation: monolithic tape band

Interested in this plan?

Contact us to get full blueprints, construction estimate, or adapt this plan to your plot and needs.

Request more information

Visualization gallery