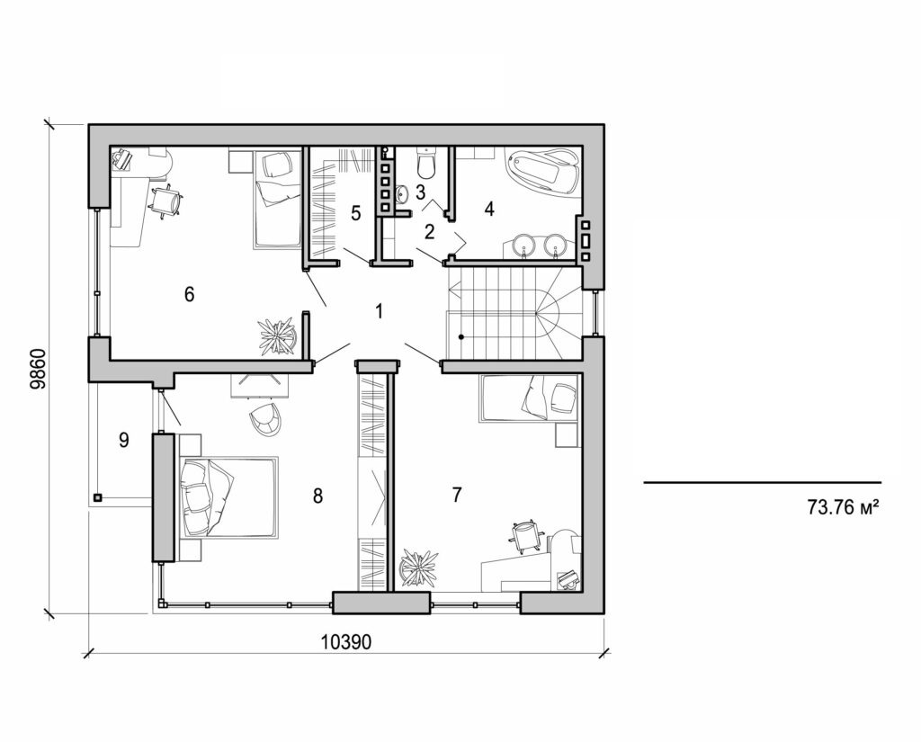
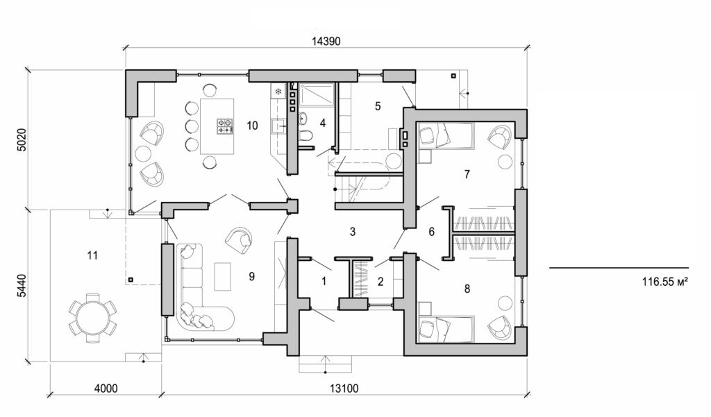
Stylish house

189 m² total area / 2034 ft² 2 floors bedrooms
Stylish house
Click to view

Interested in this plan?

Contact us to get full blueprints, construction estimate, or adapt this plan to your plot and needs.

Request more information

Visualization gallery