Classic house project with garage, extra bedroom

195 m² total area / 2099 ft² 1 floor 3 bedrooms 4 bathrooms
Classic house project with garage, extra bedroom
Click to view

Description

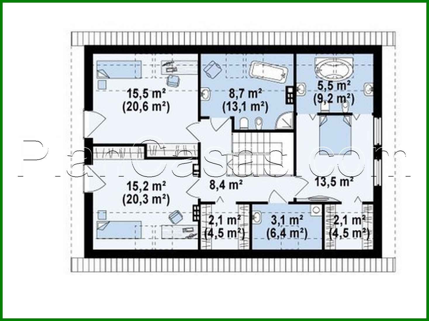
Classic house project with garage, extra bedroom Number of floors: 2 Total area: 194.80 m2 Living Area: 142.40 m2 House height: 8.29 m Ceiling Height: 2.80 m Roof Angle: 40 ° Roof area: 197.00 m2 Cubature: 514.00 m3 Number of bedrooms: 3 Number of bathrooms: 4 Garage: Garage for one car Minimum plot size (length): 21.44 m Minimum plot size (width): 17.60 m Materials: Walls: aerated concrete, ceramic blocks Overlap: monolithic overlap Roofing: ceramic tile, metal tile, cement-sand tile Foundation: monolithic tape band

Interested in this plan?

Contact us to get full blueprints, construction estimate, or adapt this plan to your plot and needs.

Request more information

Visualization gallery