House project with an attic, a large technical room and an office

205 m² total area / 2207 ft² 2 floors 4 bedrooms 3 bathrooms
House project with an attic, a large technical room and an office
Click to view

Description

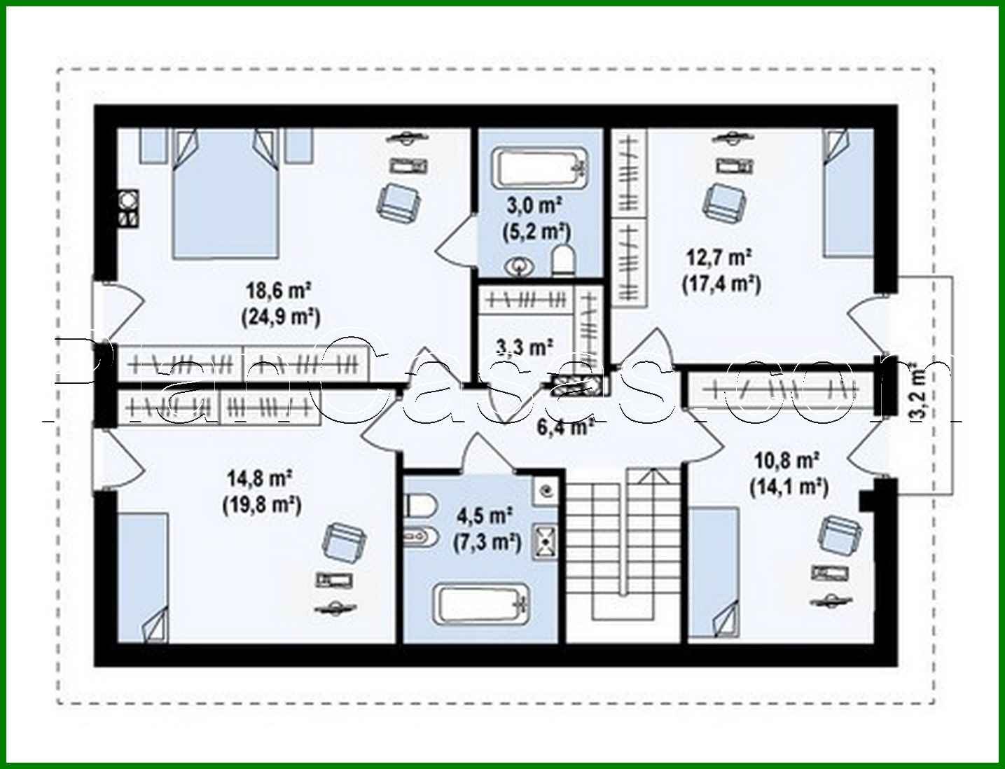
House project with an attic, a large technical room and an office Number of floors: 2 Total area: 204.50 m2 Living Area: 151.50 m2 House height: 8.31 m Ceiling Height: 2.80 m Roof Angle: 40 ° Roof area: 195.00 m2 Cubic capacity: 510.00 m3 Number of bedrooms: 4 Number of bathrooms: 3 Garage: Garage for one car Minimum plot size (length): 22.34 m Minimum plot size (width): 19.20 m Materials: Walls: aerated concrete, ceramic blocks Overlap: monolithic overlap Roofing: ceramic tile, metal tile, cement-sand tile Foundation: monolithic tape band

Interested in this plan?

Contact us to get full blueprints, construction estimate, or adapt this plan to your plot and needs.

Request more information

Visualization gallery