The project of a cottage with a garage, for two families

162 m² total area / 1744 ft² 2 floors 3 bedrooms 2 bathrooms
The project of a cottage with a garage, for two families
Click to view

Description

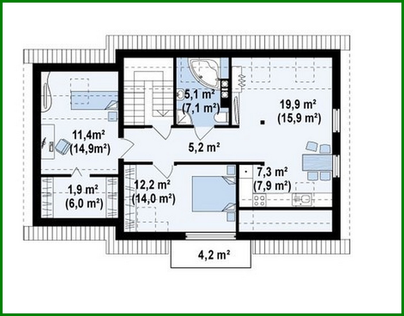
The project of a cottage with a garage, for two families Number of floors: 2 Total area: 161.80 m2 Living Area: 124.90 m2 House height: 7.90 m Ceiling Height: 2.80 m Roof Angle: 40 ° / 8 ° Roof area: 167.00 m2 Cubature: 468.00 m3 Number of bedrooms: 3 Number of bathrooms: 2 Garage: Garage for one car Minimum plot size (length): 17.00 m Minimum plot size (width): 20.00 m Materials: Walls: aerated concrete, ceramic blocks Overlap: monolithic overlap Roofing: ceramic tile, metal tile, cement-sand tile Foundation: monolithic tape band

Interested in this plan?

Contact us to get full blueprints, construction estimate, or adapt this plan to your plot and needs.

Request more information

Visualization gallery