Project of a classic house with a terrace above the garage

179 m² total area / 1927 ft² 2 floors 4 bedrooms 3 bathrooms
Project of a classic house with a terrace above the garage
Click to view

Description

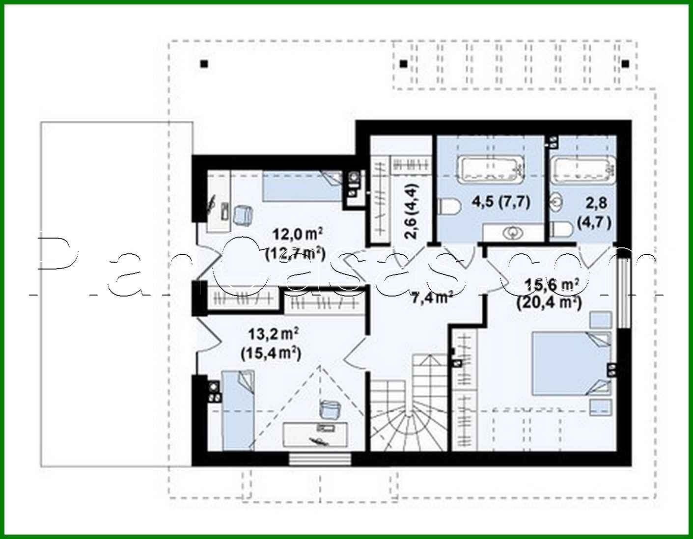
Project of a classic house with a terrace above the garage Number of floors: 2 Total area: 178.60 m2 Living Area: 138.50 m2 House height: 7.90 m Ceiling Height: 2.80 m Roof Angle: 38 ° Roof area: 174.00 m2 Cubic capacity: 453.00 m3 Number of bedrooms: 4 Number of bathrooms: 3 Garage: Garage for one car Minimum plot size (length): 16.00 m Minimum plot size (width): 23.00 m Materials: Walls: aerated concrete, ceramic blocks Overlap: monolithic overlap Roofing: ceramic tile, metal tile, cement-sand tile Foundation: monolithic tape band

Interested in this plan?

Contact us to get full blueprints, construction estimate, or adapt this plan to your plot and needs.

Request more information

Visualization gallery