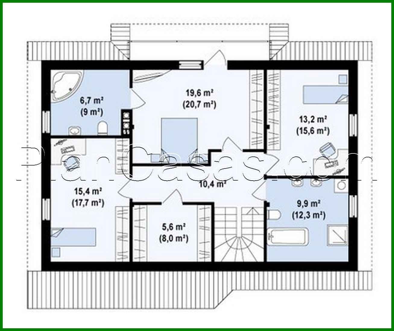
Project of a cottage with a garage and a large skylight

195 m² total area / 2099 ft² 1 floor 4 bedrooms 3 bathrooms
Project of a cottage with a garage and a large skylight
Click to view

Description

Project of a cottage with a garage and a large skylight Number of floors: 2 Total area: 195.00 m2 Living Area: 157.40 m2 House height: 8.44 m Ceiling Height: 2.80 m Roof Angle: 40 ° Roof area: 210.00 m2 Cubic capacity: 500.00 m3 Number of bedrooms: 4 Number of bathrooms: 3 Garage: Garage for one car Minimum plot size (length): 17.00 m Minimum plot size (width): 21.00 m Materials: Walls: aerated concrete, ceramic blocks Overlap: monolithic overlap Roofing: ceramic tile, metal tile, cement-sand tile Foundation: monolithic tape band

Interested in this plan?

Contact us to get full blueprints, construction estimate, or adapt this plan to your plot and needs.

Request more information

Visualization gallery