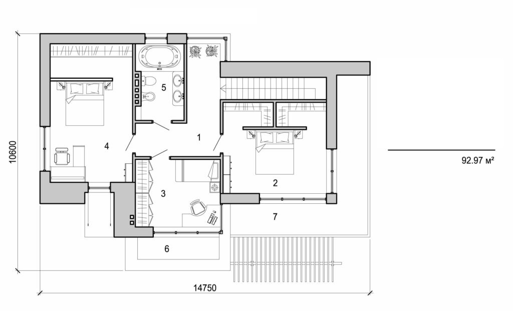
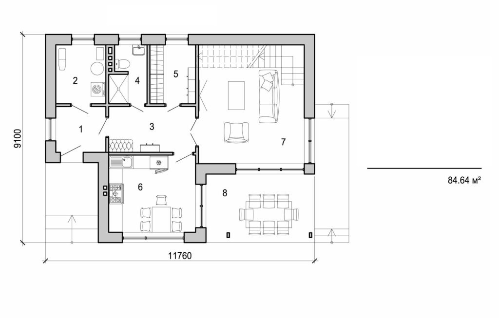
Modern house

177 m² total area / 1905 ft² 2 floors bedrooms
Modern house
Click to view

Interested in this plan?

Contact us to get full blueprints, construction estimate, or adapt this plan to your plot and needs.

Request more information

Visualization gallery