The project of a cottage with an attic, with a frontal garage

169 m² total area / 1819 ft² 1 floor 4 bedrooms 3 bathrooms
The project of a cottage with an attic, with a frontal garage
Click to view

Description

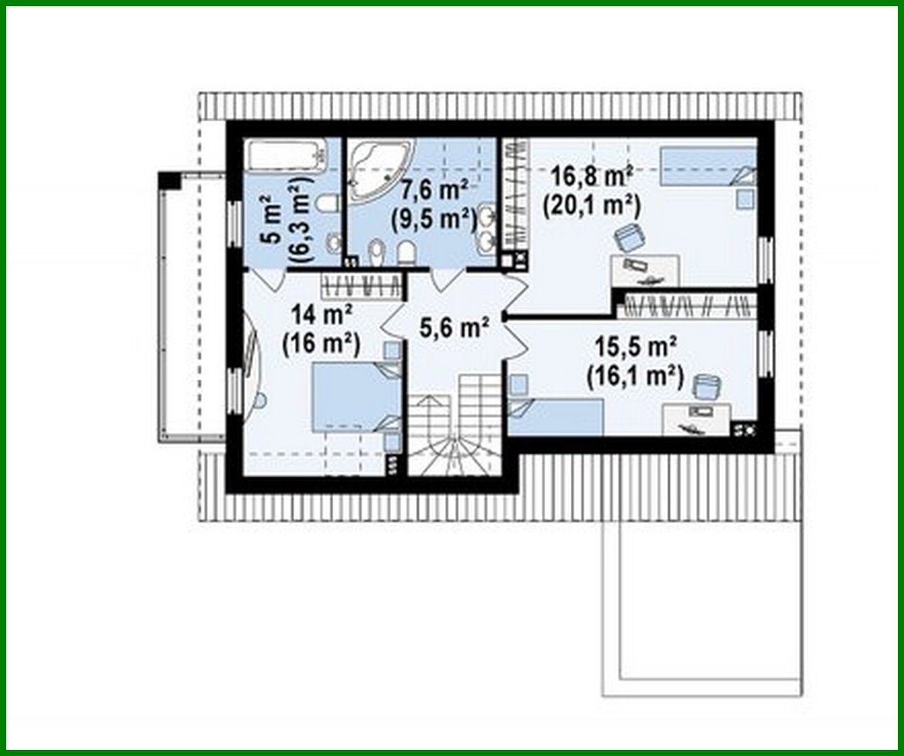
The project of a cottage with an attic, with a frontal garage Number of floors: 2 Total area: 169.00 m2 Living Area: 141.00 m2 House height: 7.00 m Ceiling Height: 2.80 m Roof Angle: 35 ° Roof area: 151.00 m2 Cubic capacity: 430.00 m3 Number of bedrooms: 4 Number of bathrooms: 3 Garage: Garage for one car Minimum plot size (length): 20.00 m Minimum plot size (width): 20.00 m Materials: Walls: aerated concrete, ceramic blocks Overlap: monolithic overlap Roofing: ceramic tile, metal tile, cement-sand tile Foundation: monolithic tape band

Interested in this plan?

Contact us to get full blueprints, construction estimate, or adapt this plan to your plot and needs.

Request more information

Visualization gallery