Cottage project with built-in garage, corner terrace and study

263 m² total area / 2831 ft² 2 floors 3 bedrooms 2 bathrooms
Cottage project with built-in garage, corner terrace and study
Click to view

Description

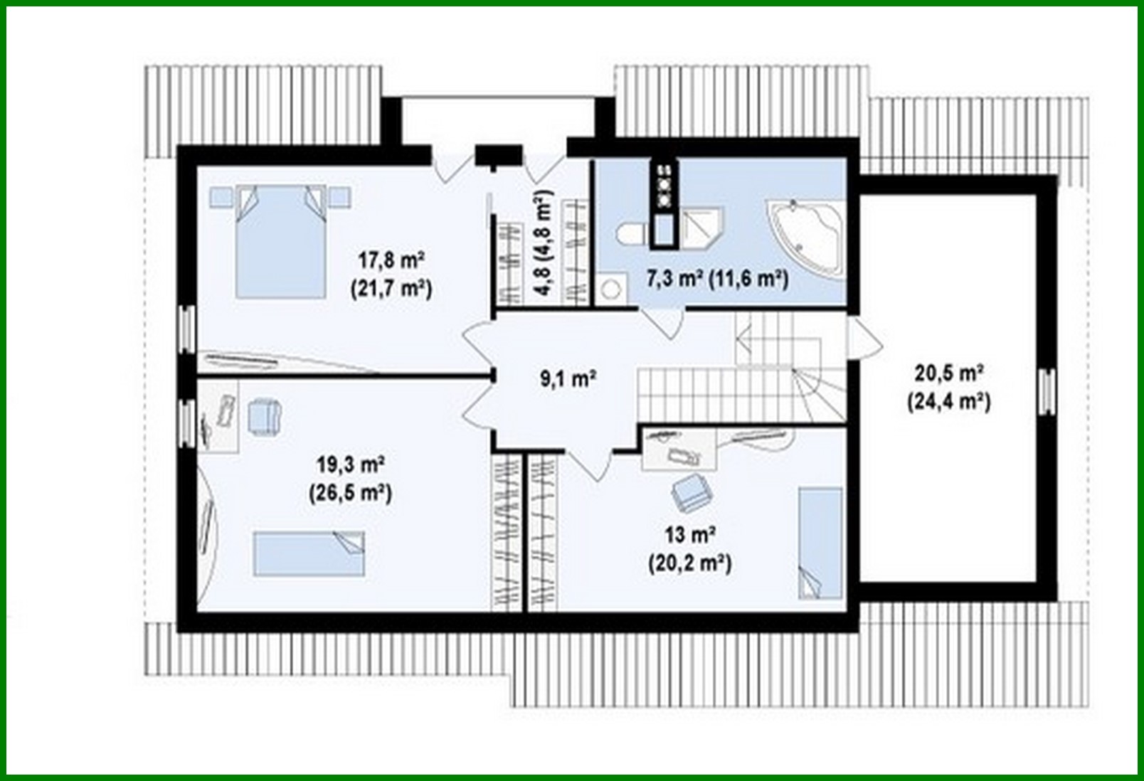
Cottage project with built-in garage, corner terrace and study Number of floors: 2 Total area: 263.40 m2 Living Area: 210.90 m2 House height: 7.90 m Ceiling Height: 2.80 m Roof Angle: 38 ° Roof Area: 257.66 m2 Cubature: 597.30 m3 Number of bedrooms: 3 Number of bathrooms: 2 Garage: Garage for one car Minimum plot size (length): 18.14 m Minimum plot size (width): 27.74 m Materials: Walls: aerated concrete, ceramic blocks Overlap: monolithic overlap Roofing: ceramic tile, metal tile, cement-sand tile Foundation: monolithic tape band

Interested in this plan?

Contact us to get full blueprints, construction estimate, or adapt this plan to your plot and needs.

Request more information

Visualization gallery