House project with an attic, a living room and a double garage

246 m² total area / 2648 ft² 1 floor 4 bedrooms 3 bathrooms
House project with an attic, a living room and a double garage
Click to view

Description

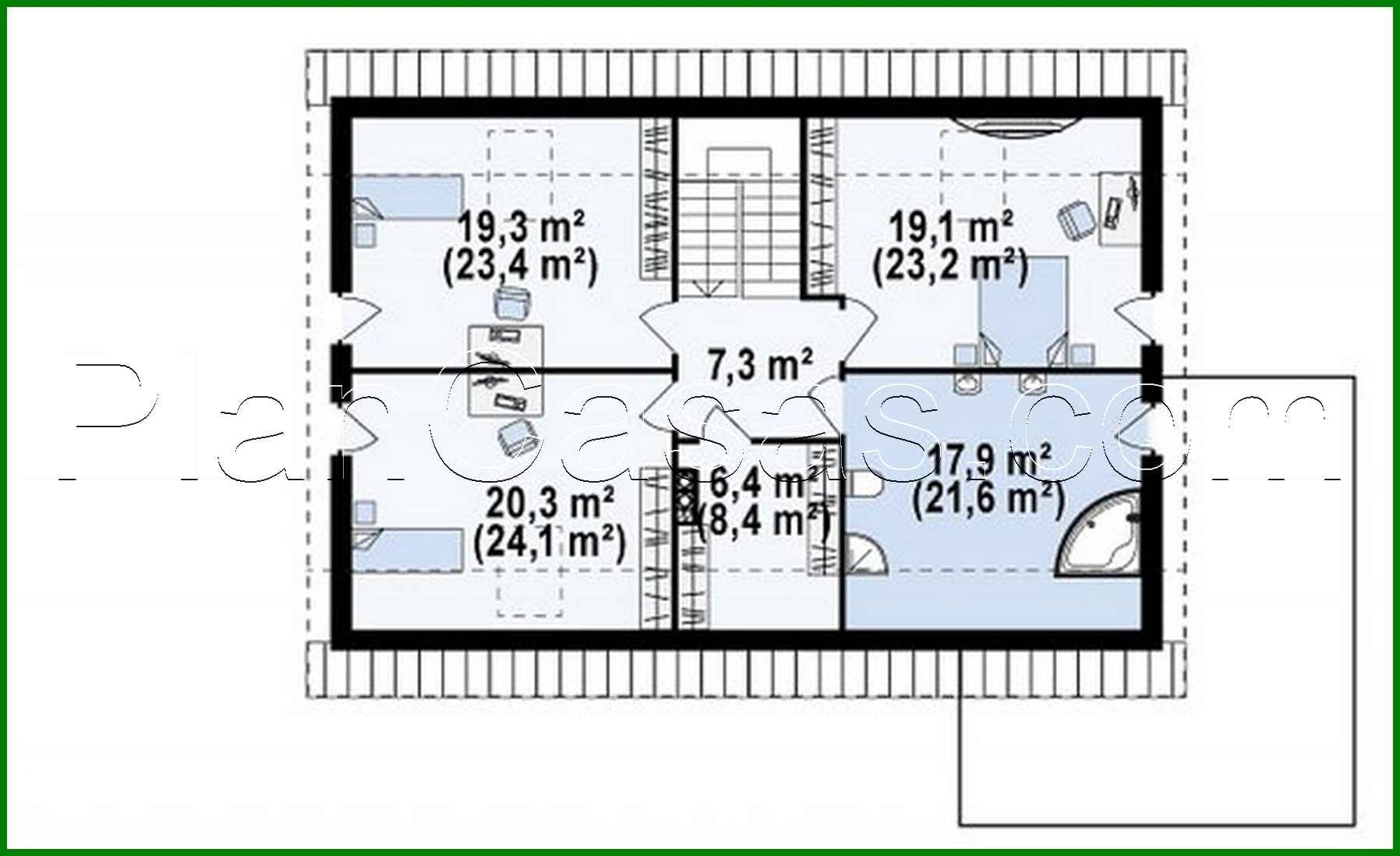
House project with an attic, a living room and a double garage Number of floors: 2 Total area: 246.00 m2 Living Area: 186.00 m2 House height: 8.00 m Ceiling Height: 2.80 m Roof Angle: 40 ° Roof area: 214.00 m2 Cubic capacity: 630.00 m3 Number of bedrooms: 4 Number of bathrooms: 3 Garage: Two-car garage Minimum plot size (length): 24.00 m Minimum plot size (width): 20.00 m Materials: Walls: aerated concrete, ceramic blocks Overlap: monolithic overlap Roofing: ceramic tile, metal tile, cement-sand tile Foundation: monolithic tape band

Interested in this plan?

Contact us to get full blueprints, construction estimate, or adapt this plan to your plot and needs.

Request more information

Visualization gallery