House project with a garage and an original attic

195 m² total area / 2099 ft² 1 floor 4 bedrooms 2 bathrooms
House project with a garage and an original attic
Click to view

Description

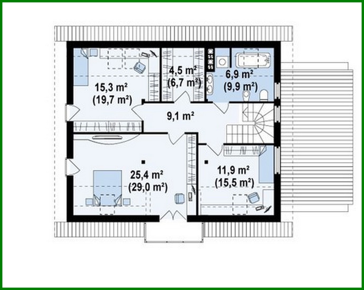
House project with a garage and an original attic Number of floors: 2 Total area: 194.80 m2 Living Area: 153.60 m2 House height: 8.47 m Ceiling Height: 2.80 m Roof Angle: 40 ° Roof area: 226.00 m2 Cubic capacity: 530.00 m3 Number of bedrooms: 4 Number of bathrooms: 2 Garage: Garage for one car Minimum plot size (length): 22.18 m Minimum plot size (width): 17.78 m Materials: Walls: aerated concrete, ceramic blocks Overlap: monolithic overlap Roofing: ceramic tile, metal tile, cement-sand tile Foundation: monolithic tape band

Interested in this plan?

Contact us to get full blueprints, construction estimate, or adapt this plan to your plot and needs.

Request more information

Visualization gallery