The project of a modern cozy cottage

194 m² total area / 2088 ft² 2 floors 4 bedrooms 2 bathrooms
The project of a modern cozy cottage
Click to view

Description

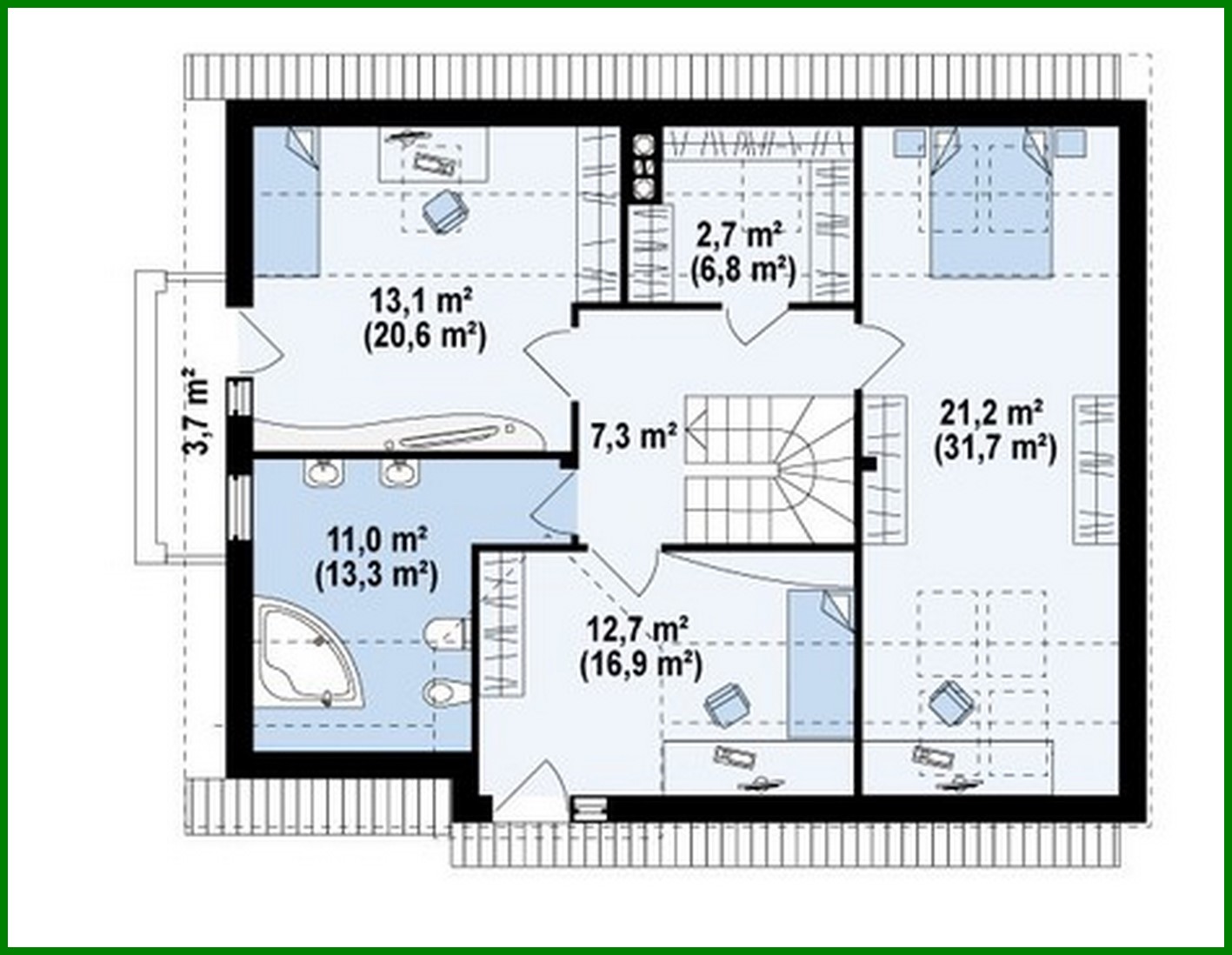
The project of a modern cozy cottage Number of floors: 2 Total area: 194.40 m2 Living Area: 135.40 m2 House height: 7.80 m Ceiling Height: 2.80 m Roof Angle: 35 ° Roof area: 167.00 m2 Cubature: 470.00 m3 Number of bedrooms: 4 Number of bathrooms: 2 Garage: Garage for one car Minimum plot size (length): 17.78 m Minimum plot size (width): 19.69 m Materials: Walls: aerated concrete, ceramic blocks Overlap: monolithic overlap Roofing: ceramic tile, metal tile, cement-sand tile Foundation: monolithic tape band

Interested in this plan?

Contact us to get full blueprints, construction estimate, or adapt this plan to your plot and needs.

Request more information

Visualization gallery