Project of a stylish house with an attic and a garage

179 m² total area / 1927 ft² 2 floors 3 bedrooms 2 bathrooms
Project of a stylish house with an attic and a garage
Click to view

Description

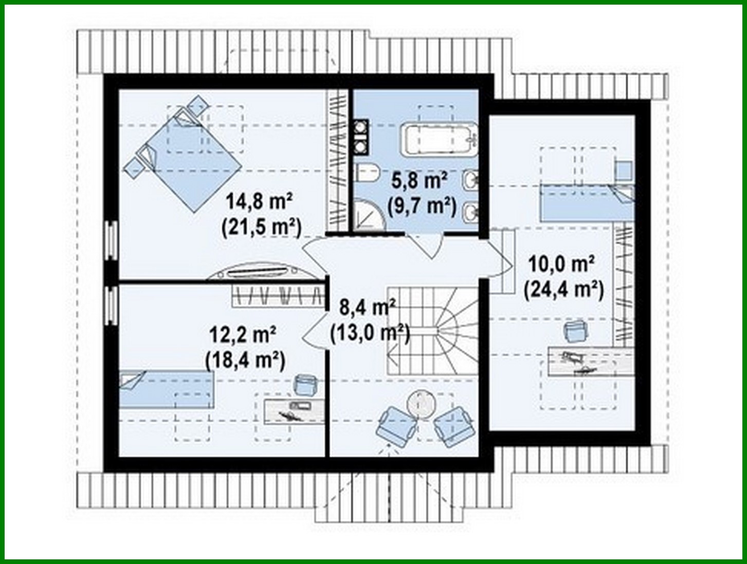
Project of a stylish house with an attic and a garage Number of floors: 2 Total area: 178.60 m2 Living Area: 118.80 m2 House height: 7.74 m Ceiling Height: 2.80 m Roof Angle: 40 ° Roof area: 182.00 m2 Cubic capacity: 436.00 m3 Number of bedrooms: 3 Number of bathrooms: 2 Garage: Garage for one car Minimum plot size (length): 17.18 m Minimum plot size (width): 19.48 m Materials: Walls: aerated concrete, ceramic blocks Overlap: monolithic overlap Roofing: ceramic tile, metal tile, cement-sand tile Foundation: monolithic tape band

Interested in this plan?

Contact us to get full blueprints, construction estimate, or adapt this plan to your plot and needs.

Request more information

Visualization gallery