The project of a two-story cottage with a garage for two cars

226 m² total area / 2433 ft² 2 floors 4 bedrooms 3 bathrooms
The project of a two-story cottage with a garage for two cars
Click to view

Description

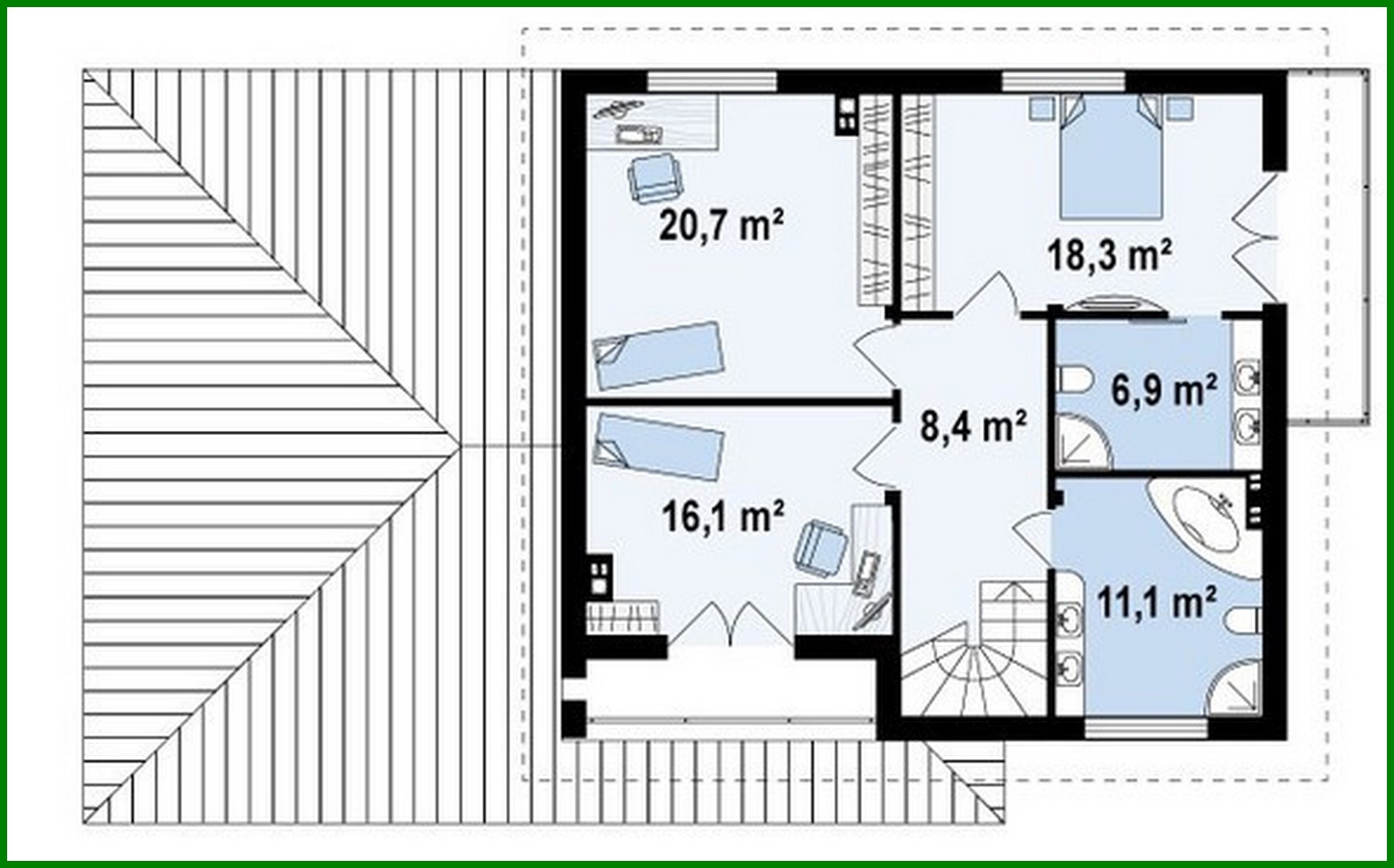
The project of a two-story cottage with a garage for two cars Number of floors: 2 Total area: 225.70 m2 Living Area: 172.00 m2 House height: 9.55 m Ceiling Height: 2.80 m Roof Angle: 30 ° / 25 ° Roof area: 256.00 m2 Cubature: 464.00 m3 Number of bedrooms: 4 Number of bathrooms: 3 Garage: Two-car garage Minimum plot size (length): 23.68 m Minimum plot size (width): 18.68 m Materials: Walls: aerated concrete, ceramic blocks Overlap: monolithic overlap Roofing: ceramic tile, metal tile, cement-sand tile Foundation: monolithic tape band

Interested in this plan?

Contact us to get full blueprints, construction estimate, or adapt this plan to your plot and needs.

Request more information

Visualization gallery