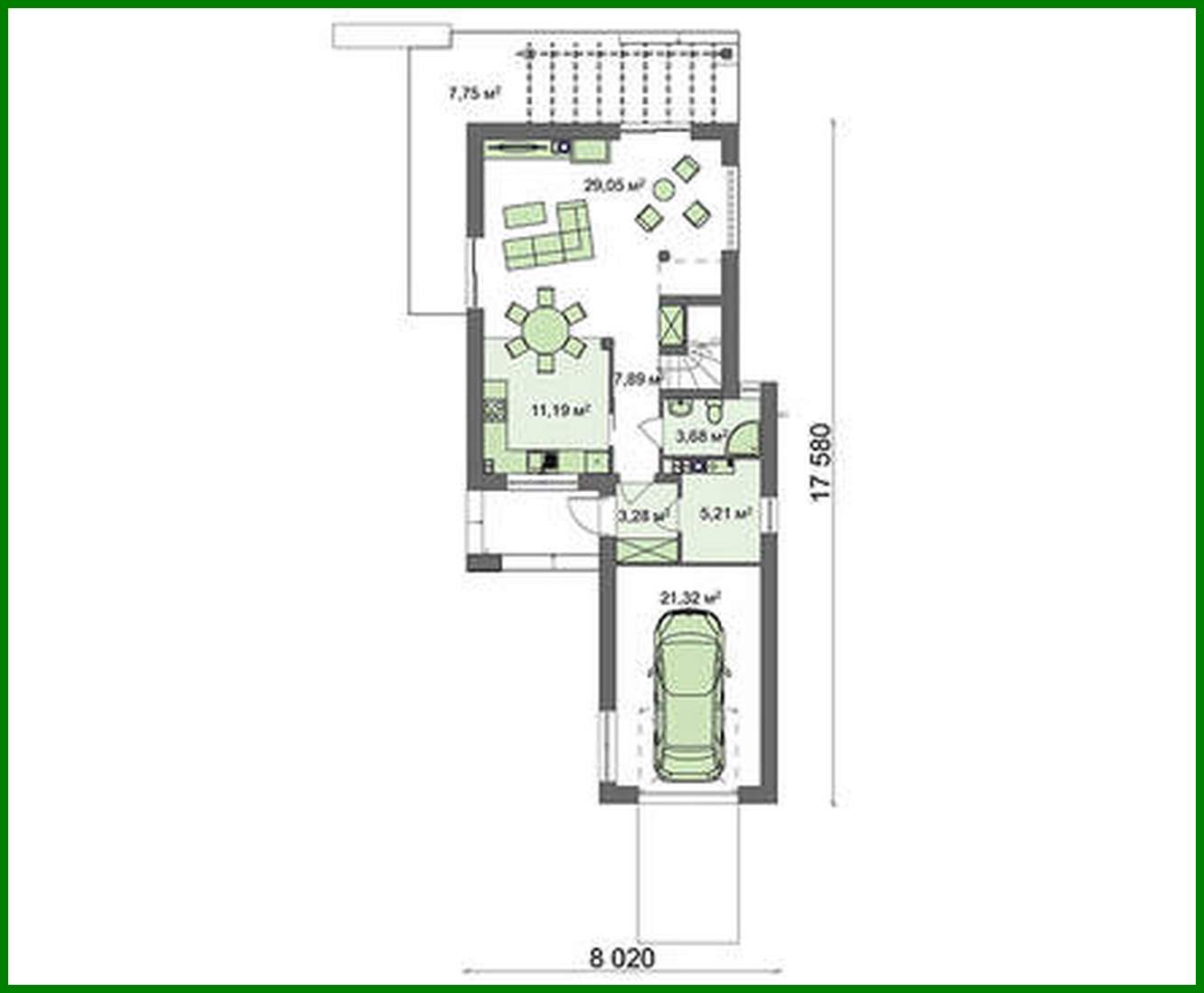
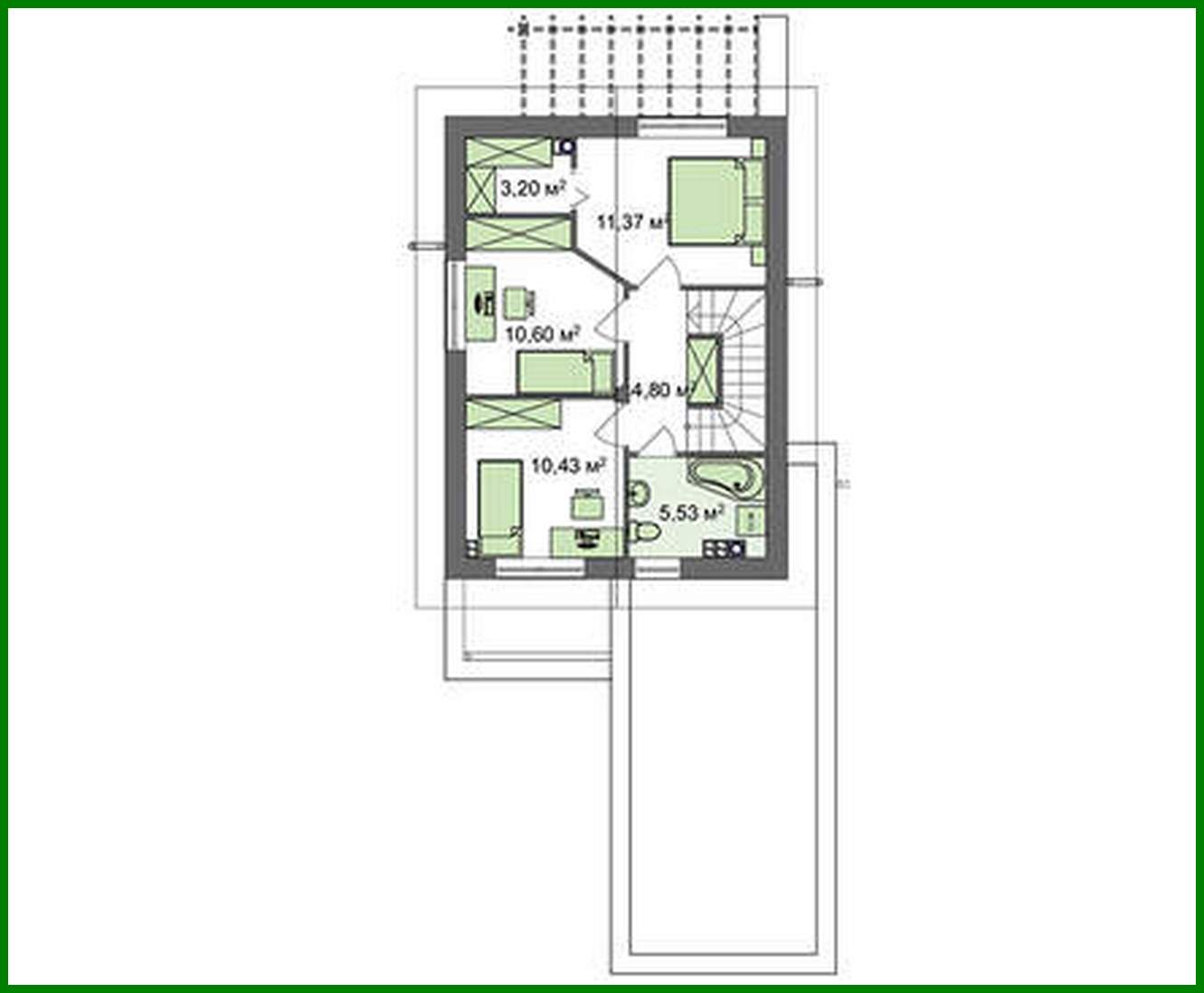
The project of a two-story cottage with a garage

135 m² total area / 1453 ft² 2 floors 3 bedrooms 2 bathrooms
The project of a two-story cottage with a garage
Click to view

Description

The project of a two-story cottage with a garage Number of floors: 2 Total area: 135.30 m2 Living Area: 61.45 m2 House height: 8.12 m Ceiling Height: 2.80 m Roof Angle: 30 ° Roof area: 103.00 m2 Cubic capacity: 338.00 m3 Number of bedrooms: 3 Number of bathrooms: 2 Garage: Garage for one car Minimum plot size (length): 14.94 m Minimum plot size (width): 25.50 m Materials: Walls: aerated concrete, ceramic blocks Overlap: monolithic overlap Roofing: ceramic tile, metal tile, cement-sand tile Foundation: monolithic tape

Interested in this plan?

Contact us to get full blueprints, construction estimate, or adapt this plan to your plot and needs.

Request more information

Visualization gallery