House project with an attic, bay window and balcony, stylish facade

188 m² total area / 2024 ft² 1 floor bedrooms
House project with an attic, bay window and balcony, stylish facade
Click to view

Description

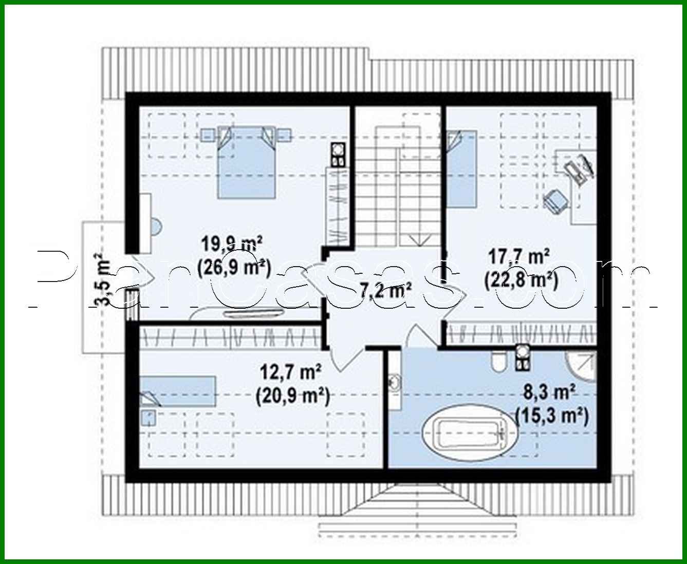
House project with an attic, bay window and balcony, stylish facade Number of floors: 2 Total area: 188.00 m2 Living Area: 161.00 m2 House height: 8.00 m Ceiling Height: 2.80 m Roof Angle: 40 ° Roof area: 192.00 m2 Cubic capacity: 451.00 m3 Minimum plot size (length): 20.00 m Minimum plot size (width): 17.00 m Materials: Walls: aerated concrete, ceramic blocks Overlap: monolithic overlap Roofing: ceramic tile, metal tile, cement-sand tile Foundation: monolithic tape band

Interested in this plan?

Contact us to get full blueprints, construction estimate, or adapt this plan to your plot and needs.

Request more information

Visualization gallery