House project with an attic and a garage for two cars

234 m² total area / 2519 ft² 2 floors bedrooms
House project with an attic and a garage for two cars
Click to view

Description

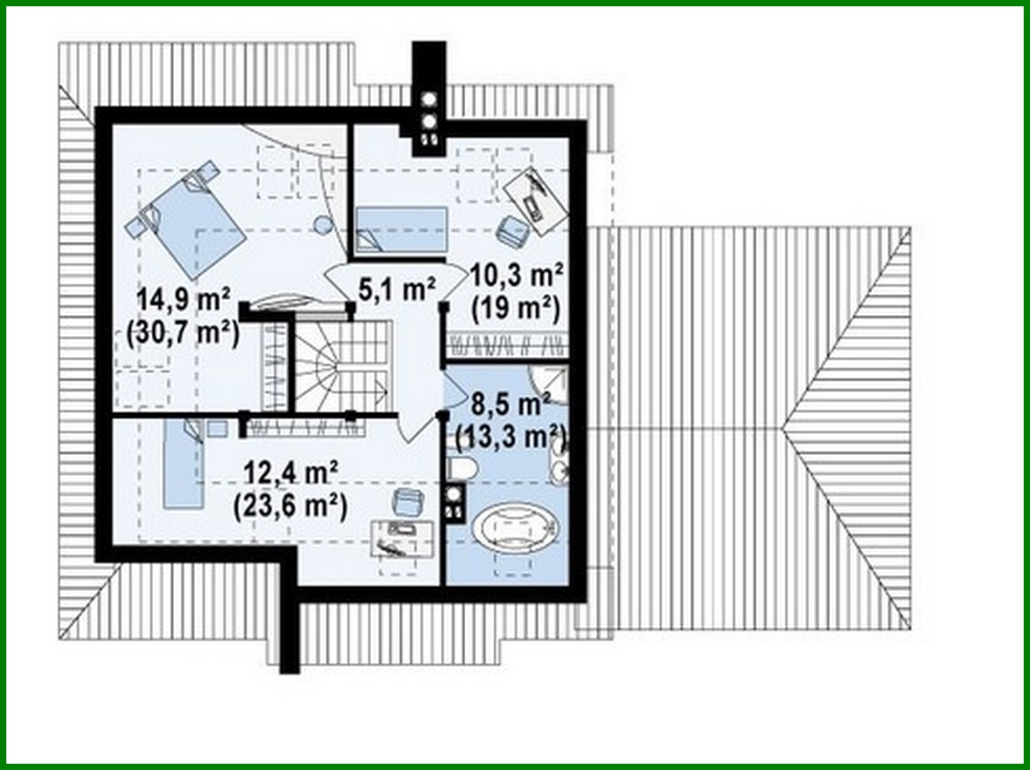
House project with an attic and a garage for two cars Number of floors: 2 Total area: 234.00 m2 Living Area: 146.00 m2 House height: 7.00 m Ceiling Height: 2.80 m Roof Angle: 30 ° / 34.5 ° Roof area: 251.00 m2 Cubature: 538.00 m3 Garage: Two-car garage Minimum plot size (length): 24.00 m Minimum plot size (width): 18.00 m Materials: Walls: aerated concrete, ceramic blocks Overlap: monolithic overlap Roofing: ceramic tile, metal tile, cement-sand tile Foundation: monolithic tape band

Interested in this plan?

Contact us to get full blueprints, construction estimate, or adapt this plan to your plot and needs.

Request more information

Visualization gallery