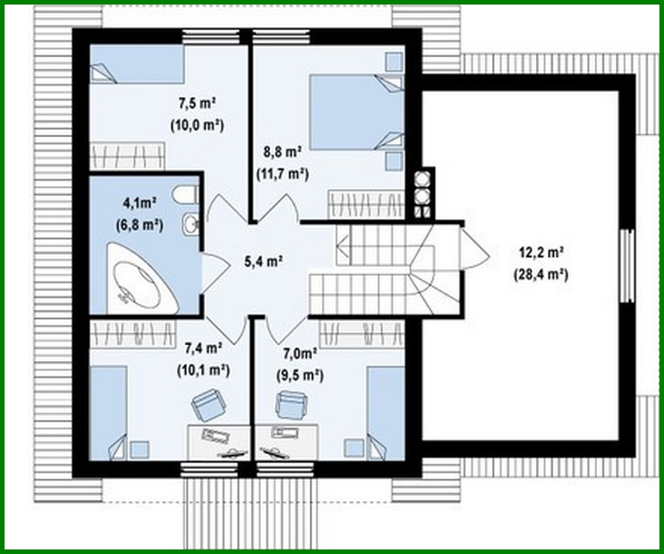
One-storey house project with attic, garage and green roof

139 m² total area / 1496 ft² 2 floors 4 bedrooms 2 bathrooms
One-storey house project with attic, garage and green roof
Click to view

Description

One-storey house project with attic, garage and green roof Number of floors: 2 Total area: 139.20 m2 Living Area: 100.20 m2 House height: 7.20 m Ceiling Height: 2.80 m Roof Angle: 40 ° Roof area: 175.22 m2 Cubic capacity: 397.80 m3 Number of bedrooms: 4 Number of bathrooms: 2 Garage: Garage for one car Minimum plot size (length): 18.88 m Minimum plot size (width): 17.48 m Built-up area: 106.3 m2 Materials: Walls: aerated concrete, ceramic blocks Overlap: monolithic overlap Roofing: ceramic tile, metal tile, cement-sand tile Foundation: monolithic tape band

Interested in this plan?

Contact us to get full blueprints, construction estimate, or adapt this plan to your plot and needs.

Request more information

Visualization gallery