The project of a small country house with a front terrace

84 m² total area / 904 ft² 1 floor 3 bedrooms 2 bathrooms
The project of a small country house with a front terrace
Click to view

Description

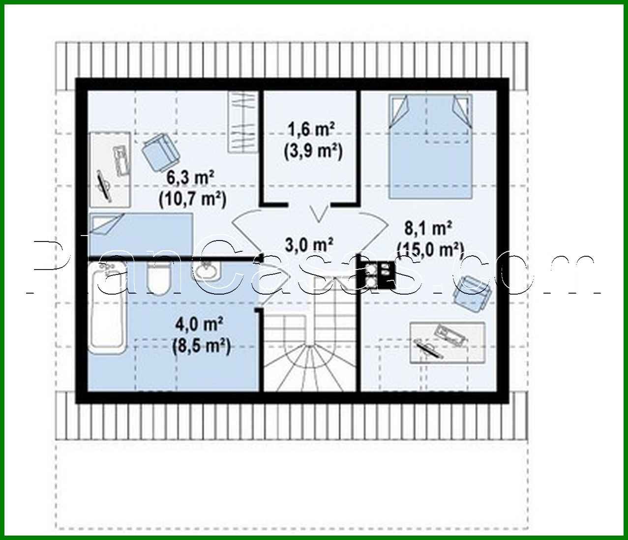
The project of a small country house with a front terrace Number of floors: 2 Total area: 84.00 m2 Living Area: 65.90 m2 House height: 7.00 m Ceiling Height: 2.80 m Roof Angle: 45 ° Roof area: 93.60 m2 Cubic capacity: 188.40 m3 Number of bedrooms: 3 Number of bathrooms: 2 Minimum plot size (length): 15.58 m Minimum plot size (width): 14.48 m Built-up area: 84.5 m2 Materials: Walls: aerated concrete, ceramic blocks Overlap: monolithic overlap Roofing: ceramic tile, metal tile, cement-sand tile Foundation: monolithic tape band

Interested in this plan?

Contact us to get full blueprints, construction estimate, or adapt this plan to your plot and needs.

Request more information

Visualization gallery