The project of a two-story cottage for a narrow site

94 m² total area / 1012 ft² 2 floors 3 bedrooms 2 bathrooms
The project of a two-story cottage for a narrow site
Click to view

Description

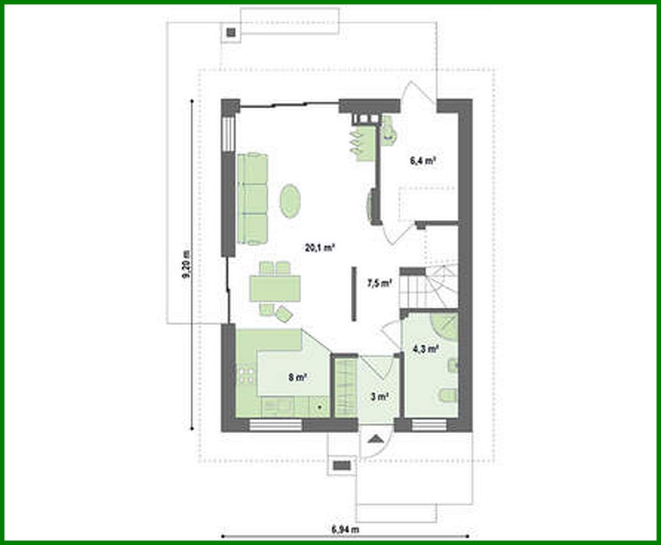
The project of a two-story cottage for a narrow site Number of floors: 2 Total area: 93.70 m2 Living Area: 93.70 m2 House height: 8.12 m Ceiling Height: 2.80 m Roof Angle: 30 ° Roof area: 101.50 m2 Cubic capacity: 248.80 m3 Number of bedrooms: 3 Number of bathrooms: 2 Minimum plot size (length): 13.94 m Minimum plot size (width): 17.20 m Built-up area: 64.6 m2 Materials: Walls: aerated concrete, ceramic blocks Overlap: monolithic overlap Roofing: ceramic tile, metal tile, cement-sand tile Foundation: monolithic tape

Interested in this plan?

Contact us to get full blueprints, construction estimate, or adapt this plan to your plot and needs.

Request more information

Visualization gallery