Compact two-story cottage project

128 m² total area / 1378 ft² 2 floors 3 bedrooms 2 bathrooms
Compact two-story cottage project
Click to view

Description

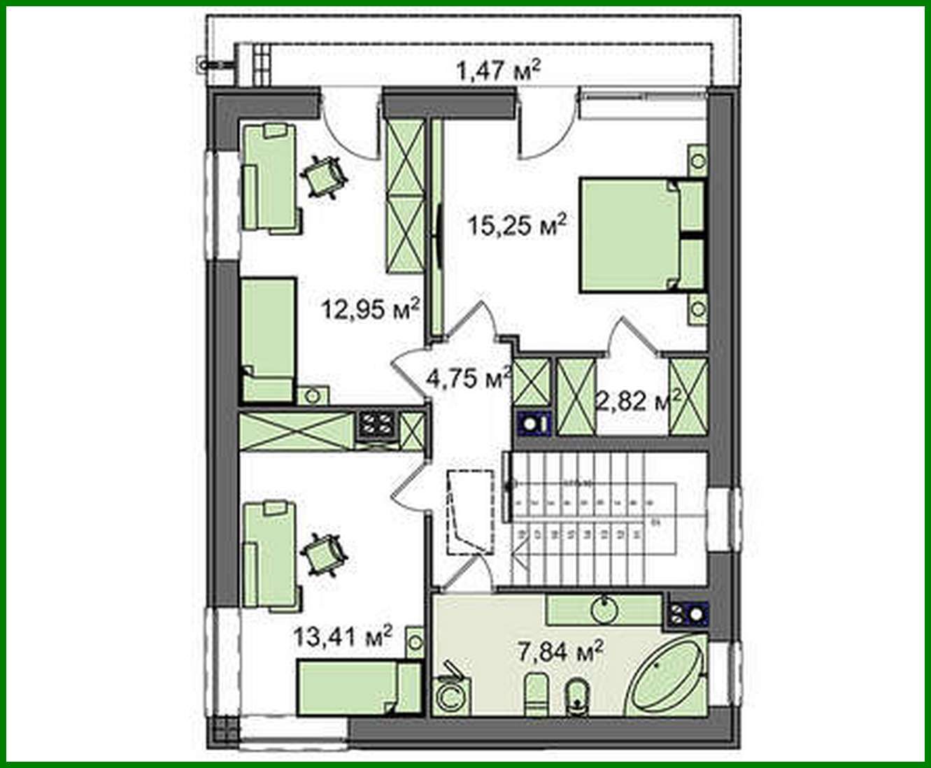
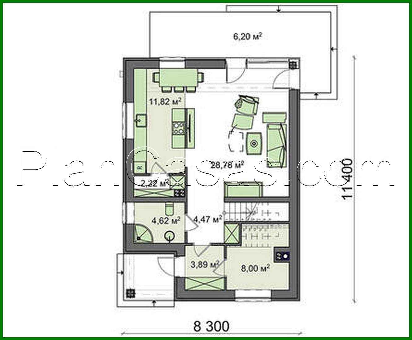
Compact two-story cottage project Number of floors: 2 Total area: 128.49 m2 Living Area: 70.39 m2 House height: 8.42 m Ceiling Height: 2.80 m Roof Angle: 22 ° Roof area: 122.00 m2 Cubic capacity: 323.00 m3 Number of bedrooms: 3 Number of bathrooms: 2 Minimum plot size (length): 18.50 m Minimum plot size (width): 15.00 m Built-up area: 119.94 m2 SIZES OF ROOMS Materials: Walls: aerated concrete blocks Overlap: monolithic overlap Roofing: metal tile, ceramic tile, bitumen Foundation: monolithic tape

Interested in this plan?

Contact us to get full blueprints, construction estimate, or adapt this plan to your plot and needs.

Request more information

Visualization gallery