Project of a house with an attic and a garage for a narrow plot

167 m² total area / 1798 ft² 2 floors 3 bedrooms 2 bathrooms
Project of a house with an attic and a garage for a narrow plot
Click to view

Description

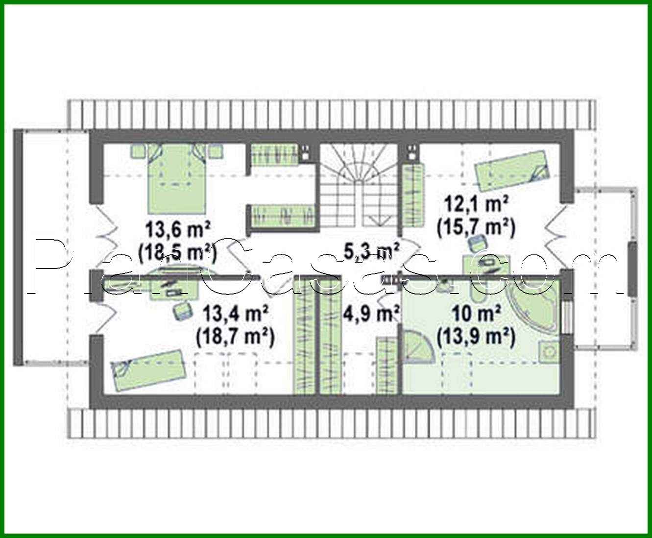
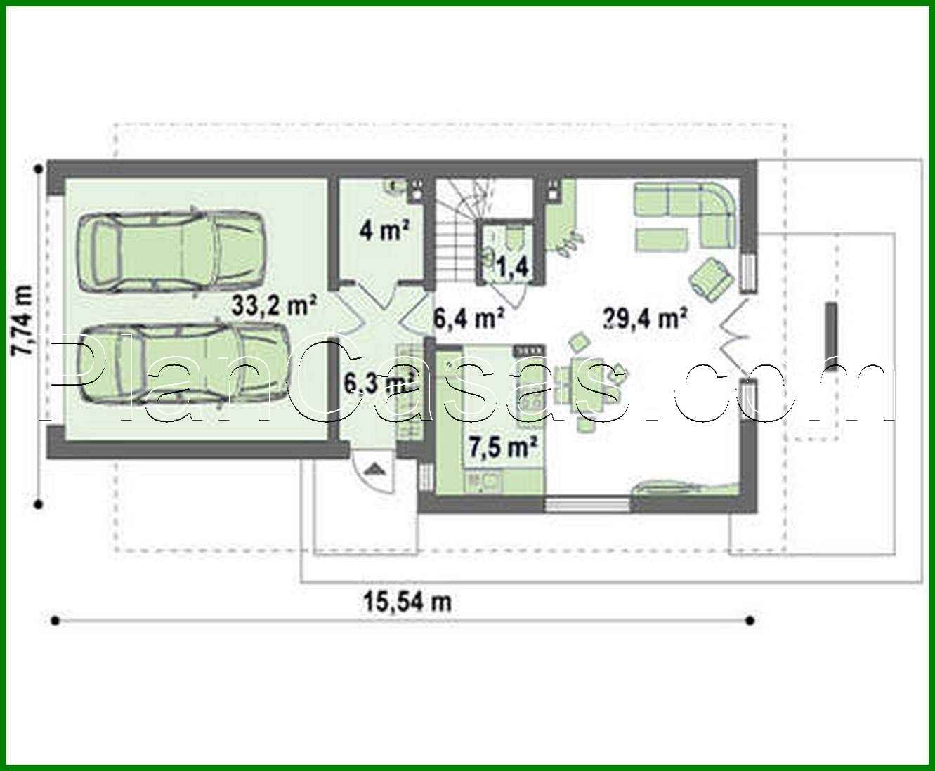
Project of a house with an attic and a garage for a narrow plot Number of floors: 2 Total area: 167.20 m2 Living Area: 117.40 m2 House height: 7.38 m Ceiling Height: 2.80 m Roof Angle: 35 ° Roof Area: 159.27 m2 Cubic capacity: 418.80 m3 Number of bedrooms: 3 Number of bathrooms: 2 Garage: Two-car garage Minimum plot size (length): 23.54 m Minimum plot size (width): 15.74 m Built-up area: 110.6 m2 Materials: Walls: aerated concrete, ceramic blocks Overlap: monolithic overlap Roofing: ceramic tile, metal tile, cement-sand tile Foundation: monolithic tape

Interested in this plan?

Contact us to get full blueprints, construction estimate, or adapt this plan to your plot and needs.

Request more information

Visualization gallery