Project of a cottage with a frontal garage

213 m² total area / 2293 ft² 2 floors 3 bedrooms 3 bathrooms
Project of a cottage with a frontal garage
Click to view

Description

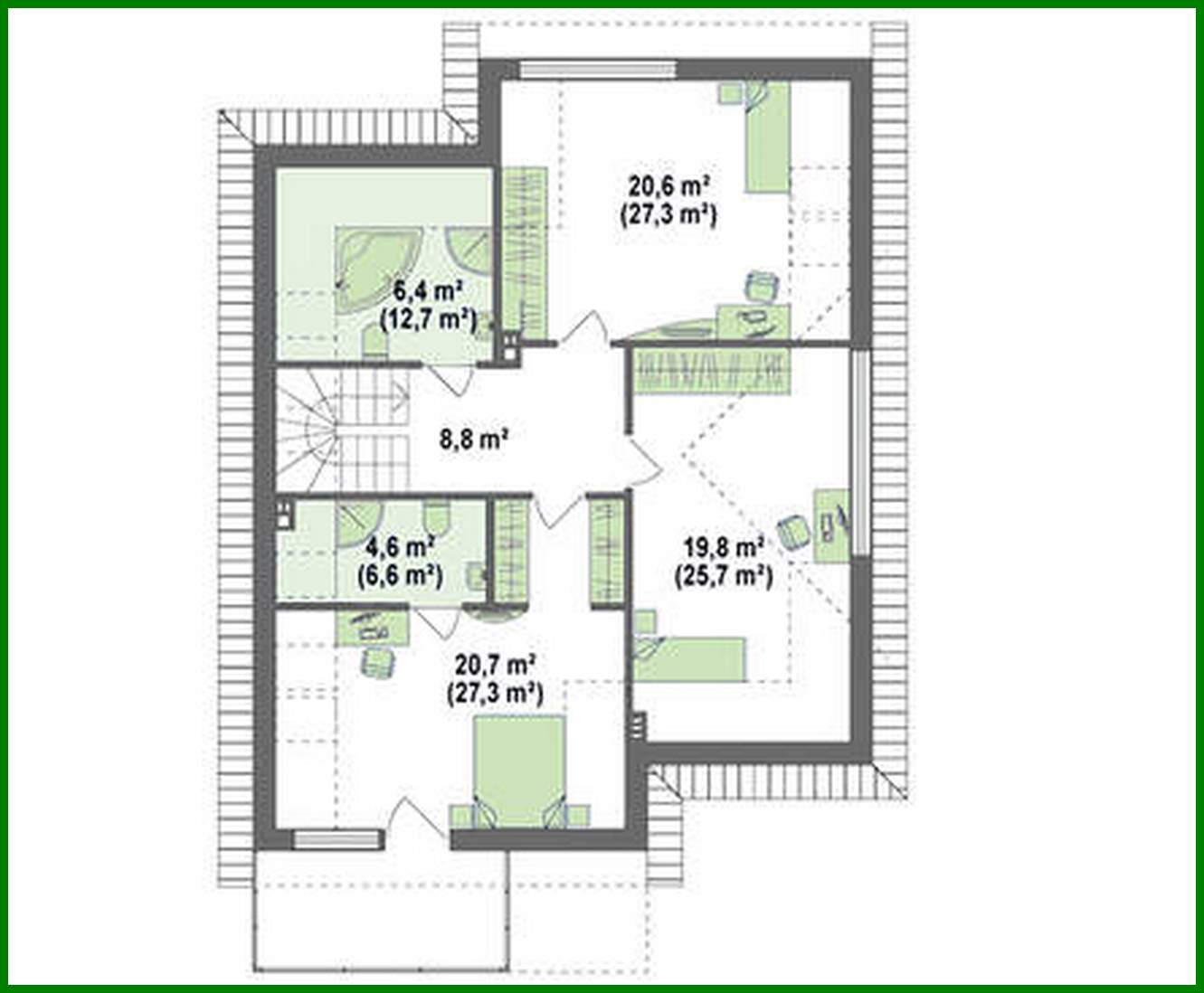
Project of a cottage with a frontal garage Number of floors: 2 Total area: 212.90 m2 Living Area: 167.30 m2 House height: 8.33 m Ceiling Height: 2.80 m Roof Angle: 35 ° Roof area: 198.30 m2 Cubic capacity: 524.70 m3 Number of bedrooms: 3 Number of bathrooms: 3 Garage: Garage for one car Minimum plot size (length): 18.74 m Minimum plot size (width): 23.84 m Built-up area: 135.4 m2 Materials: Walls: aerated concrete, ceramic blocks Overlap: monolithic overlap Roofing: ceramic tile, metal tile, cement-sand tile Foundation: monolithic tape

Interested in this plan?

Contact us to get full blueprints, construction estimate, or adapt this plan to your plot and needs.

Request more information

Visualization gallery