The project of a small neat country house with an attic and a gable roof

109 m² total area / 1173 ft² 1 floor 3 bedrooms 2 bathrooms
The project of a small neat country house with an attic and a gable roof
Click to view

Description

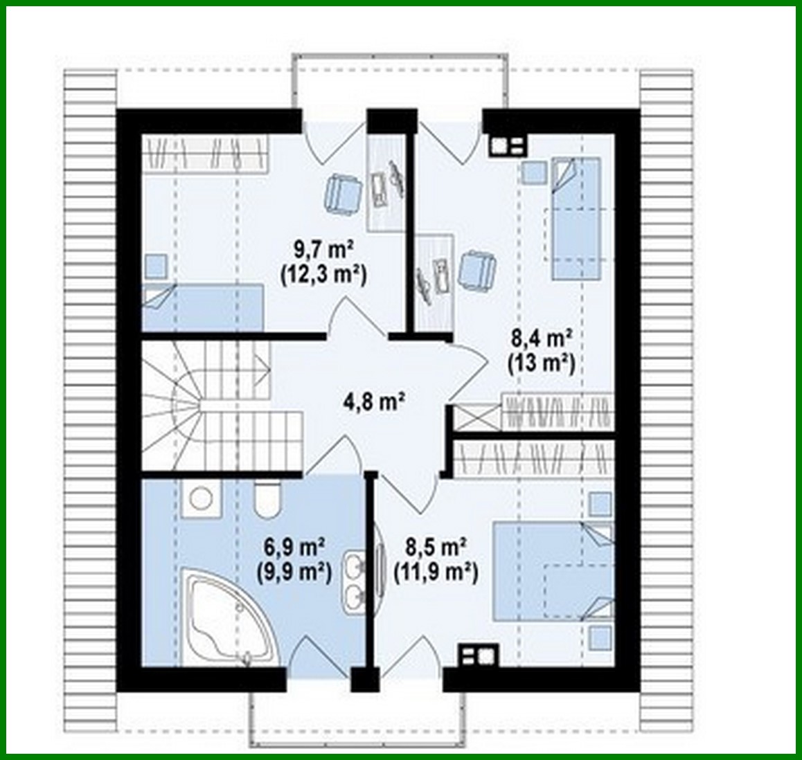
The project of a small neat country house with an attic and a gable roof Number of floors: 2 Total area: 108.90 m2 Living Area: 95.30 m2 House height: 7.71 m Ceiling Height: 2.80 m Roof Angle: 40 ° Roof area: 125.00 m2 Cubic capacity: 317.00 m3 Number of bedrooms: 3 Number of bathrooms: 2 Minimum plot size (length): 16.94 m Minimum plot size (width): 15.04 m Built-up area: 74 m2 Materials: Walls: aerated concrete, ceramic blocks Overlap: monolithic overlap Roofing: ceramic tile, metal tile, cement-sand tile Foundation: monolithic tape band

Interested in this plan?

Contact us to get full blueprints, construction estimate, or adapt this plan to your plot and needs.

Request more information

Visualization gallery