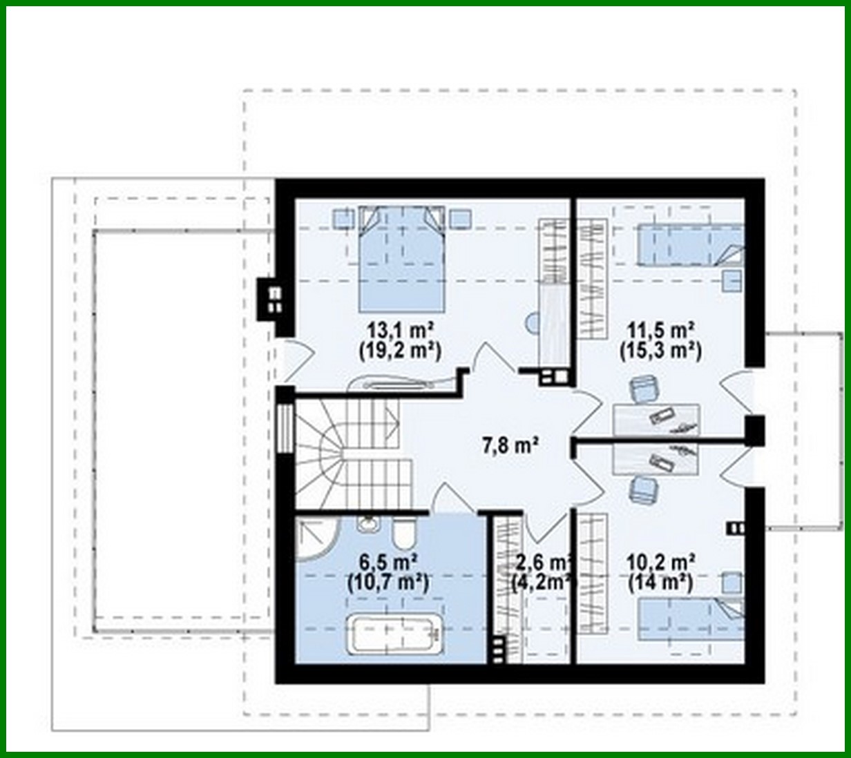
Project of a small one-story house with a terrace above the garage

180 m² total area / 1938 ft² 1 floor 4 bedrooms 2 bathrooms
Project of a small one-story house with a terrace above the garage
Click to view

Description

Project of a small one-story house with a terrace above the garage Number of floors: 2 Total area: 179.60 m2 Living Area: 130.80 m2 House height: 8.12 m Ceiling Height: 2.80 m Roof Angle: 38 ° Roof area: 156.00 m2 Cubic capacity: 533.00 m3 Number of bedrooms: 4 Number of bathrooms: 2 Garage: Garage for one car Minimum plot size (length): 16.94 m Minimum plot size (width): 20.44 m Built-up area: 134 m2 Materials: Walls: aerated concrete, ceramic blocks Overlap: monolithic overlap Roofing: ceramic tile, metal tile, cement-sand tile Foundation: monolithic tape band

Interested in this plan?

Contact us to get full blueprints, construction estimate, or adapt this plan to your plot and needs.

Request more information

Visualization gallery