Retro style house project with four-pitched roof

235 m² total area / 2530 ft² 2 floors 7 bedrooms 3 bathrooms
Retro style house project with four-pitched roof
Click to view

Description

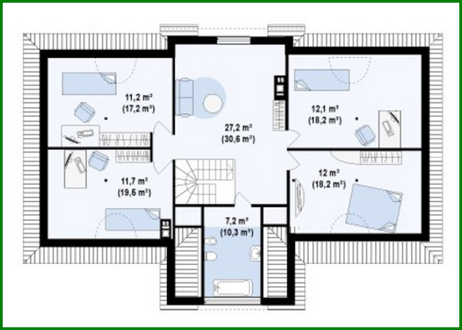
Retro style house project with four-pitched roof Number of floors: 2 Total area: 234.80 m2 Living Area: 208.60 m2 House height: 7.84 m Ceiling Height: 2.80 m Roof Angle: 40 ° Roof area: 270.00 m2 Cubic capacity: 575.30 m3 Number of bedrooms: 7 Number of bathrooms: 3 Minimum plot size (length): 23.28 m Minimum plot size (width): 19.97 m Built-up area: 150 m2 Materials: Walls: aerated concrete, ceramic blocks Overlap: monolithic overlap Roofing: ceramic tile, metal tile, cement-sand tile Foundation: monolithic tape band

Interested in this plan?

Contact us to get full blueprints, construction estimate, or adapt this plan to your plot and needs.

Request more information

Visualization gallery