Cottage project with an attic, a garage, an office on the ground floor and a bay window

175 m² total area / 1884 ft² 1 floor 5 bedrooms 3 bathrooms
Cottage project with an attic, a garage, an office on the ground floor and a bay window
Click to view

Description

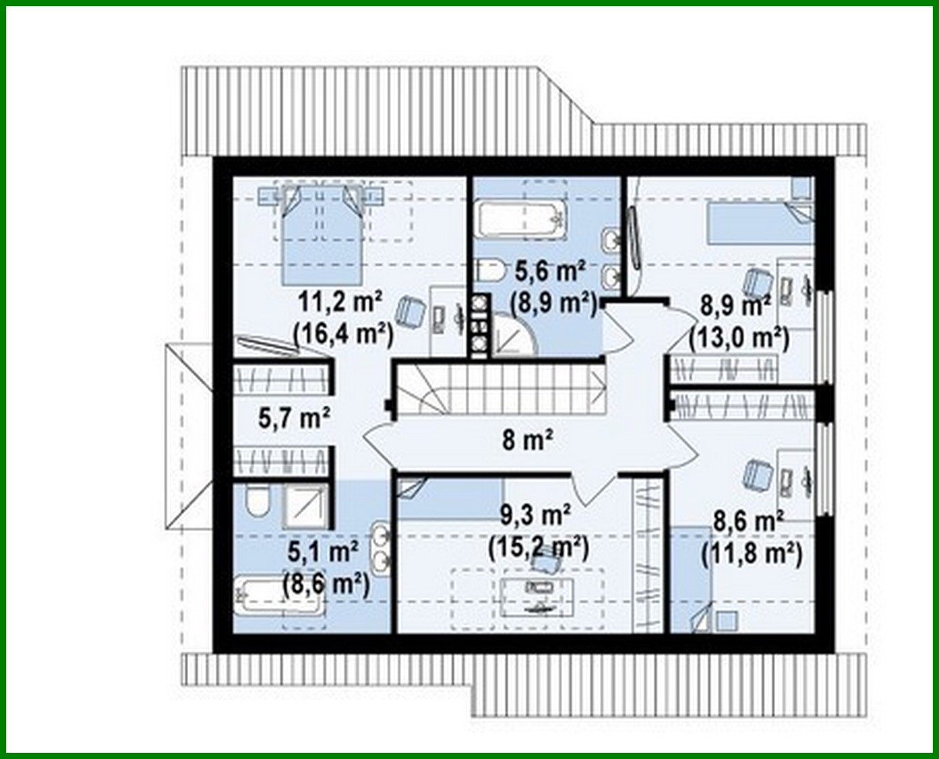
Cottage project with an attic, a garage, an office on the ground floor and a bay window Number of floors: 2 Total area: 175.20 m2 Living Area: 132.70 m2 House height: 7.91 m Ceiling Height: 2.80 m Roof Angle: 37 ° Roof area: 183.00 m2 Cubic capacity: 442.90 m3 Number of bedrooms: 5 Number of bathrooms: 3 Garage: Garage for one car Minimum plot size (length): 18.44 m Minimum plot size (width): 20.84 m Built-up area: 119 m2 Materials: Walls: aerated concrete, ceramic blocks Overlap: monolithic overlap Roofing: ceramic tile, metal tile, cement-sand tile Foundation: monolithic tape band

Interested in this plan?

Contact us to get full blueprints, construction estimate, or adapt this plan to your plot and needs.

Request more information

Visualization gallery