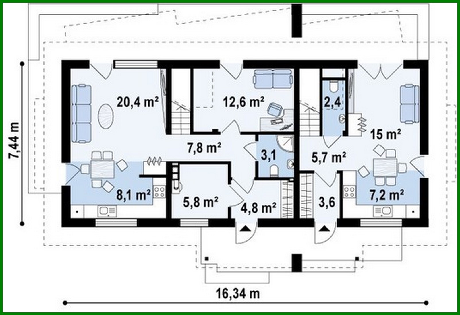
The project of a cottage for two families with separate entrances

184 m² total area / 1981 ft² 2 floors 5 bedrooms 4 bathrooms
The project of a cottage for two families with separate entrances
Click to view

Description

The project of a cottage for two families with separate entrances Number of floors: 2 Total area: 184.20 m2 Living Area: 162.20 m2 House height: 7.69 m Ceiling Height: 2.80 m Roof Angle: 40 ° Roof area: 212.00 m2 Cubic capacity: 455.00 m3 Number of bedrooms: 5 Number of bathrooms: 4 Minimum plot size (length): 15.44 m Minimum plot size (width): 24.34 m Built-up area: 122 m2 Materials: Walls: aerated concrete, ceramic blocks Overlap: monolithic overlap Roofing: ceramic tile, metal tile, cement-sand tile Foundation: monolithic tape band

Interested in this plan?

Contact us to get full blueprints, construction estimate, or adapt this plan to your plot and needs.

Request more information

Visualization gallery