Small practical house project

112 m² total area / 1206 ft² 2 floors 3 bedrooms 2 bathrooms
Small practical house project
Click to view

Description

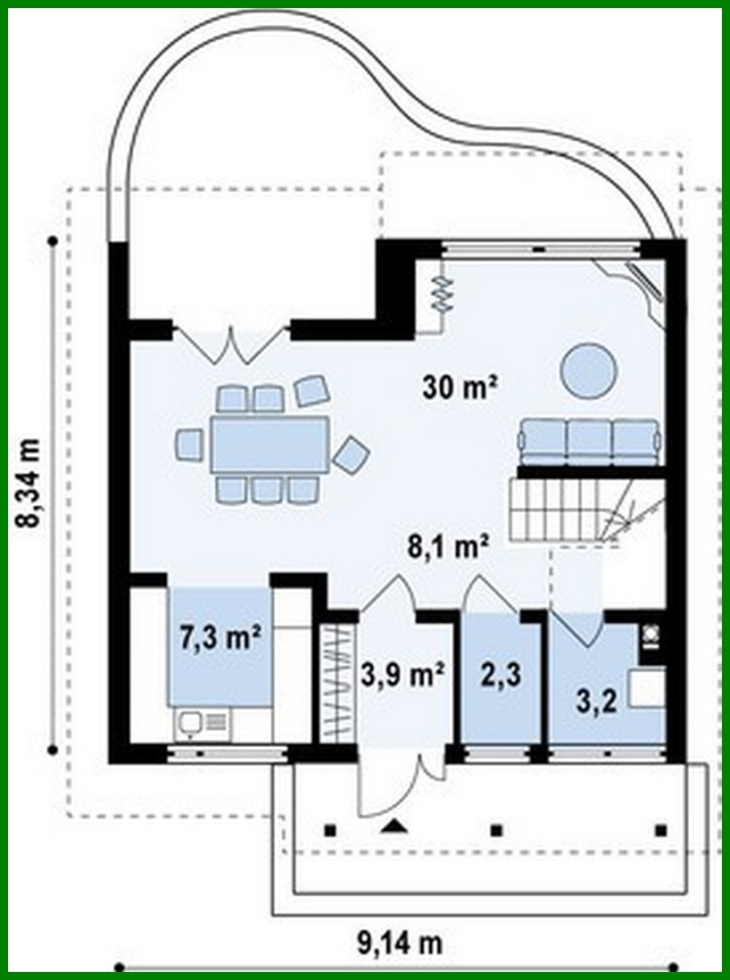
Small practical house project Number of floors: 2 Total area: 111.60 m2 Living Area: 96.70 m2 House height: 7.58 m Ceiling Height: 2.80 m Roof Angle: 38 ° Roof area: 133.00 m2 Cubic capacity: 275.80 m3 Number of bedrooms: 3 Number of bathrooms: 2 Minimum plot size (length): 17.08 m Minimum plot size (width): 16.28 m Materials: Walls: aerated concrete, ceramic blocks Overlap: monolithic overlap Roofing: ceramic tile, metal tile, cement-sand tile Foundation: monolithic tape band

Interested in this plan?

Contact us to get full blueprints, construction estimate, or adapt this plan to your plot and needs.

Request more information

Visualization gallery