Cottage Project for South Entrance Plot

147 m² total area / 1582 ft² 2 floors 3 bedrooms 2 bathrooms
Cottage Project for South Entrance Plot
Click to view

Description

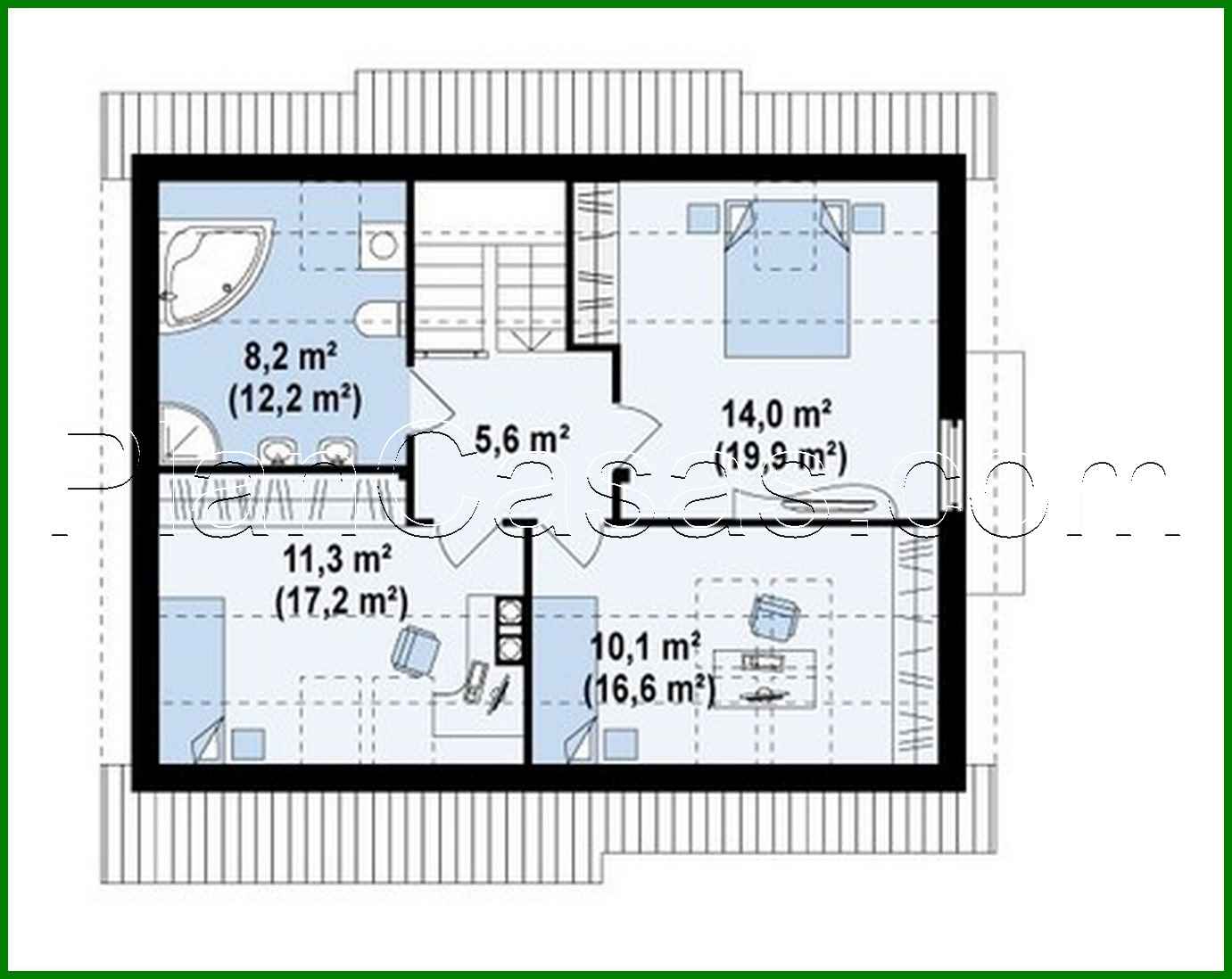
Cottage Project for South Entrance Plot Number of floors: 2 Total area: 147.00 m2 Living Area: 125.00 m2 House height: 7.00 m Ceiling Height: 2.80 m Roof Angle: 40 ° Roof area: 152.00 m2 Cubic capacity: 352.00 m3 Number of bedrooms: 3 Number of bathrooms: 2 Minimum plot size (length): 16.00 m Minimum plot size (width): 18.00 m Materials: Walls: aerated concrete, ceramic blocks Overlap: monolithic overlap Roofing: ceramic tile, metal tile, cement-sand tile Foundation: monolithic tape band

Interested in this plan?

Contact us to get full blueprints, construction estimate, or adapt this plan to your plot and needs.

Request more information

Visualization gallery