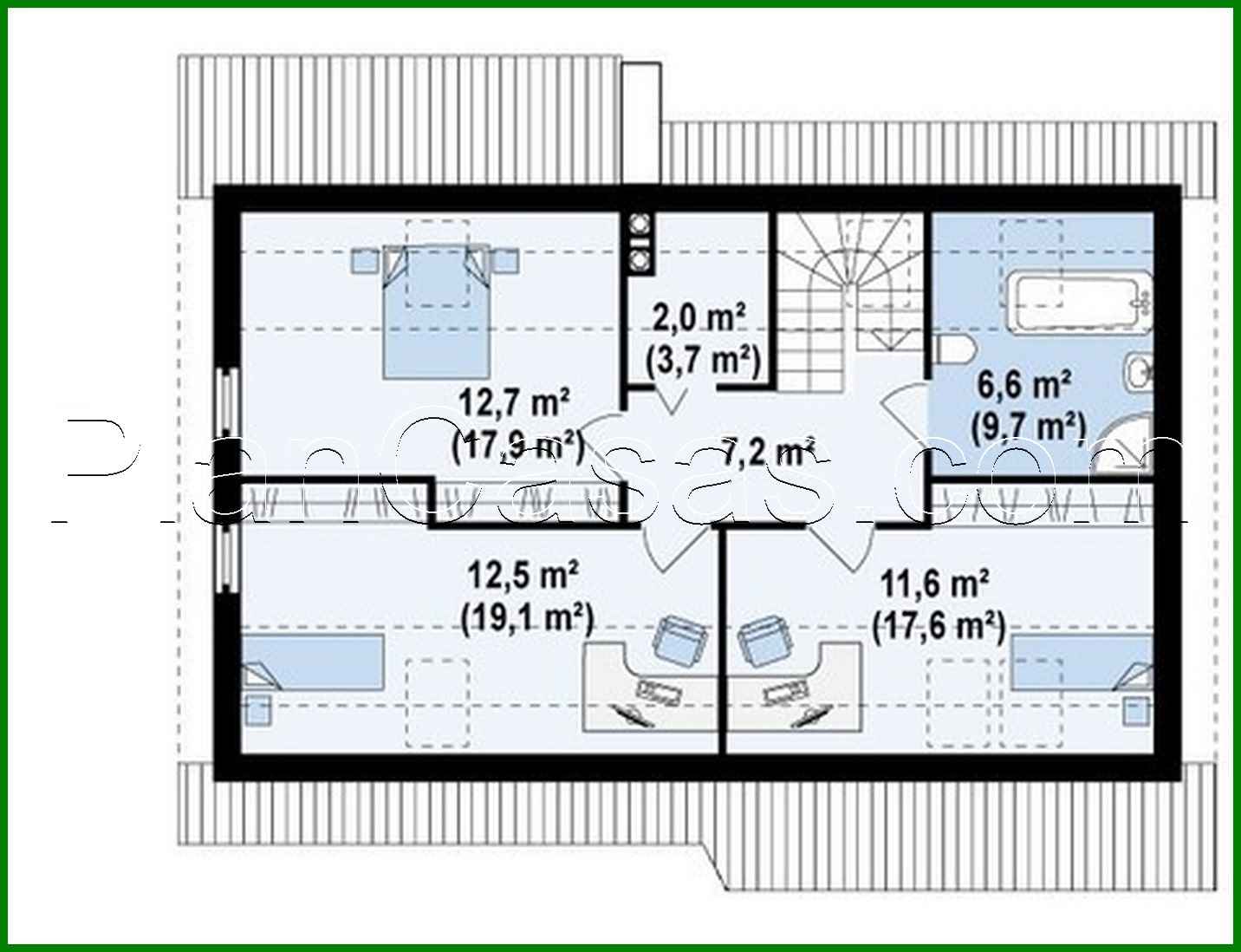
Project of a classic cottage with an office and a large bathroom

154 m² total area / 1658 ft² 2 floors 3 bedrooms 2 bathrooms
Project of a classic cottage with an office and a large bathroom
Click to view

Description

Project of a classic cottage with an office and a large bathroom Number of floors: 2 Total area: 154.00 m2 Living Area: 129.00 m2 House height: 7.24 m Ceiling Height: 2.80 m Roof Angle: 38 ° Roof area: 159.00 m2 Cubic capacity: 364.20 m3 Number of bedrooms: 3 Number of bathrooms: 2 Minimum plot size (length): 15.00 m Minimum plot size (width): 19.00 m Materials: Walls: aerated concrete, ceramic blocks Overlap: monolithic overlap Roofing: ceramic tile, metal tile, cement-sand tile Foundation: monolithic tape band

Interested in this plan?

Contact us to get full blueprints, construction estimate, or adapt this plan to your plot and needs.

Request more information

Visualization gallery