The project of a large mansion in the Art Nouveau style

211 m² total area / 2271 ft² 2 floors 3 bedrooms 3 bathrooms
The project of a large mansion in the Art Nouveau style
Click to view

Description

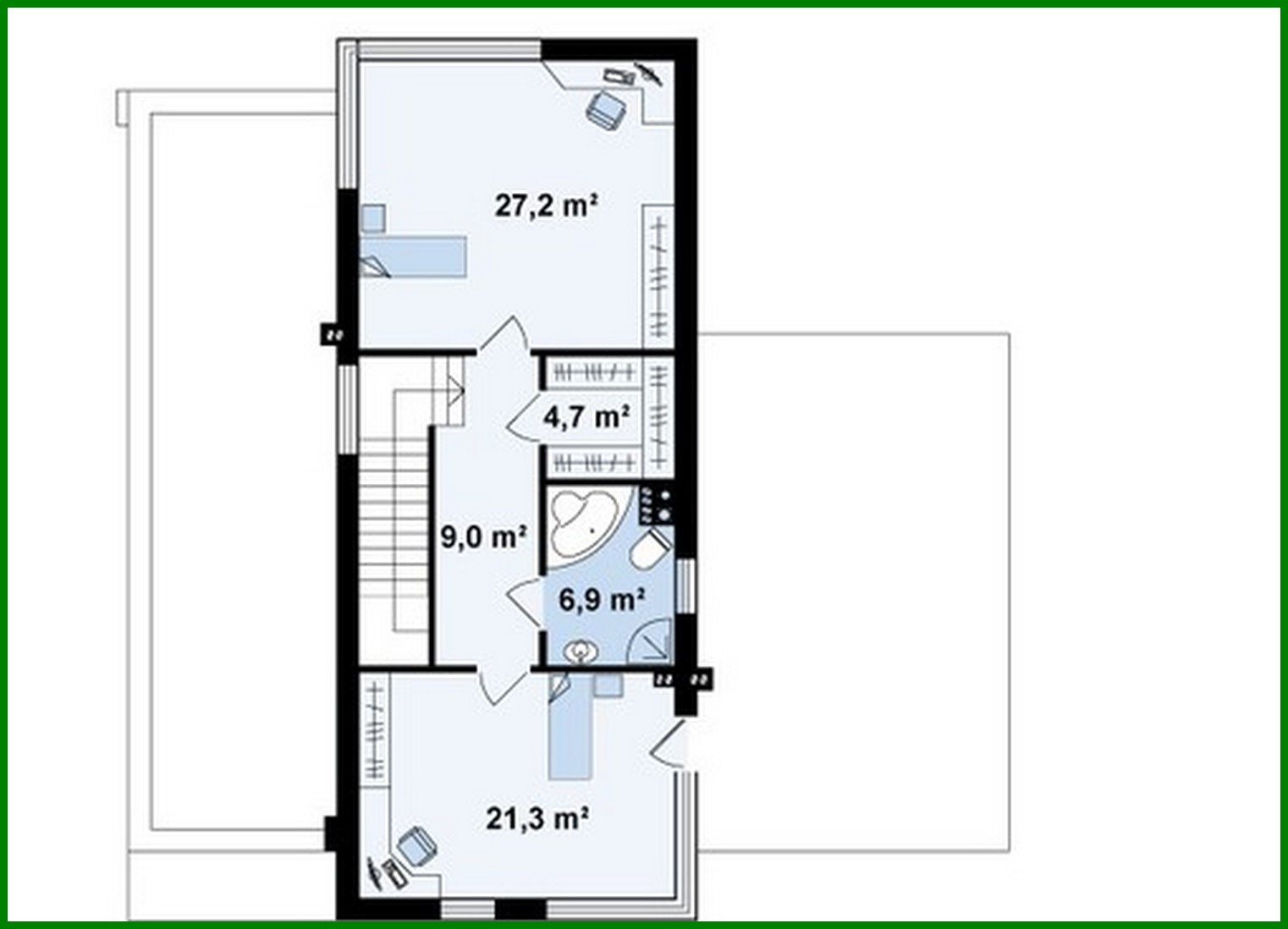
The project of a large mansion in the Art Nouveau style Number of floors: 2 Total area: 211.40 m2 Living Area: 184.40 m2 House height: 7.10 m Ceiling Height: 2.80 m Roof Angle: 3 ° Roof area: 118.00 m2 Cubature: 495.00 m3 Number of bedrooms: 3 Number of bathrooms: 3 Garage: Garage for one car Minimum plot size (length): 21.14 m Minimum plot size (width): 22.24 m Materials: Walls: aerated concrete, ceramic blocks Overlap: monolithic overlap Roofing: PVC membrane Foundation: monolithic tape band

Interested in this plan?

Contact us to get full blueprints, construction estimate, or adapt this plan to your plot and needs.

Request more information

Visualization gallery