The project of a two-story cottage with a garage for one car

222 m² total area / 2390 ft² 2 floors 5 bedrooms 2 bathrooms
The project of a two-story cottage with a garage for one car
Click to view

Description

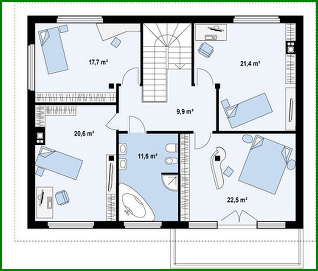
The project of a two-story cottage with a garage for one car Number of floors: 2 Total area: 221.90 m2 Living Area: 189.10 m2 House height: 8.42 m Ceiling Height: 2.80 m Roof Angle: 19 ° Roof area: 170.00 m2 Cubic capacity: 621.40 m3 Number of bedrooms: 5 Number of bathrooms: 2 Garage: Garage for one car Minimum plot size (length): 19.96 m Minimum plot size (width): 21.08 m Materials: Walls: aerated concrete, ceramic blocks Overlap: monolithic overlap Roofing: ceramic tile, metal tile, cement-sand tile Foundation: monolithic tape band

Interested in this plan?

Contact us to get full blueprints, construction estimate, or adapt this plan to your plot and needs.

Request more information

Visualization gallery