House project with fireplace on the terrace

119 m² total area / 1281 ft² 2 floors 3 bedrooms 2 bathrooms
House project with fireplace on the terrace
Click to view

Description

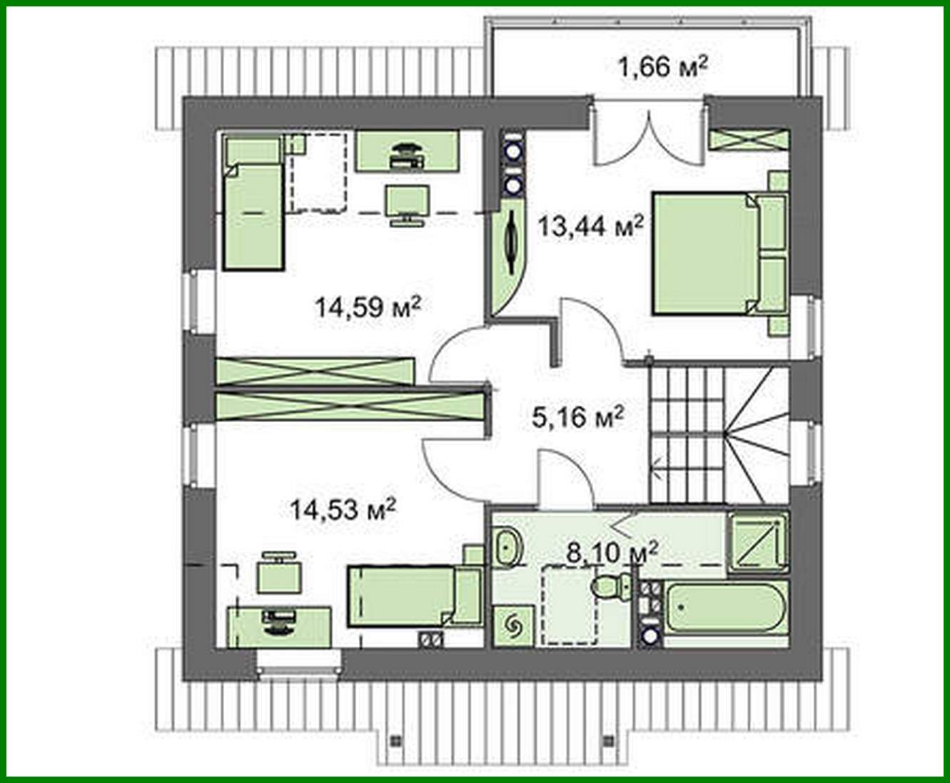
House project with fireplace on the terrace Number of floors: 2 Total area: 119.01 m2 Living Area: 68.63 m2 House height: 7.42 m Ceiling Height: 2.80 m Roof Angle: 38 ° Roof area: 129.00 m2 Cubic capacity: 271.80 m3 Number of bedrooms: 3 Number of bathrooms: 2 Minimum plot size (length): 18.08 m Minimum plot size (width): 16.28 m Built-up area: 70 m2 Materials: Walls: aerated concrete, ceramic blocks Overlap: monolithic overlap Roofing: metal tile, ceramic tile, bitumen Foundation: monolithic tape

Interested in this plan?

Contact us to get full blueprints, construction estimate, or adapt this plan to your plot and needs.

Request more information

Visualization gallery