The project of a large original chic mansion with a garage for 2 cars

466 m² total area / 5016 ft² 2 floors 4 bedrooms 3 bathrooms
The project of a large original chic mansion with a garage for 2 cars
Click to view

Description

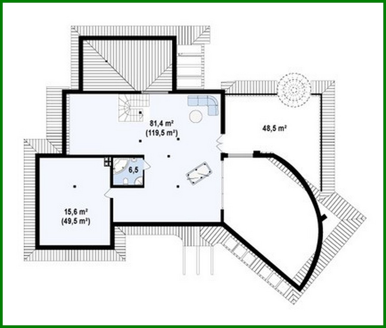
The project of a large original chic mansion with a garage for 2 cars Number of floors: 2 Total area: 466.00 m2 Living Area: 346.30 m2 House height: 8.60 m Ceiling Height: 2.80 m Roof Angle: 32 ° Roof area: 520.00 m2 Cubic capacity: 1166.00 m3 Number of bedrooms: 4 Number of bathrooms: 3 Garage: Two-car garage Minimum plot size (length): 32.90 m Minimum plot size (width): 38.70 m Materials: Walls: aerated concrete, ceramic blocks Overlap: monolithic overlap Roofing: ceramic tile, metal tile, cement-sand tile Foundation: monolithic tape band

Interested in this plan?

Contact us to get full blueprints, construction estimate, or adapt this plan to your plot and needs.

Request more information

Visualization gallery