House project with an external fireplace

111 m² total area / 1195 ft² 2 floors 3 bedrooms 2 bathrooms
House project with an external fireplace
Click to view

Description

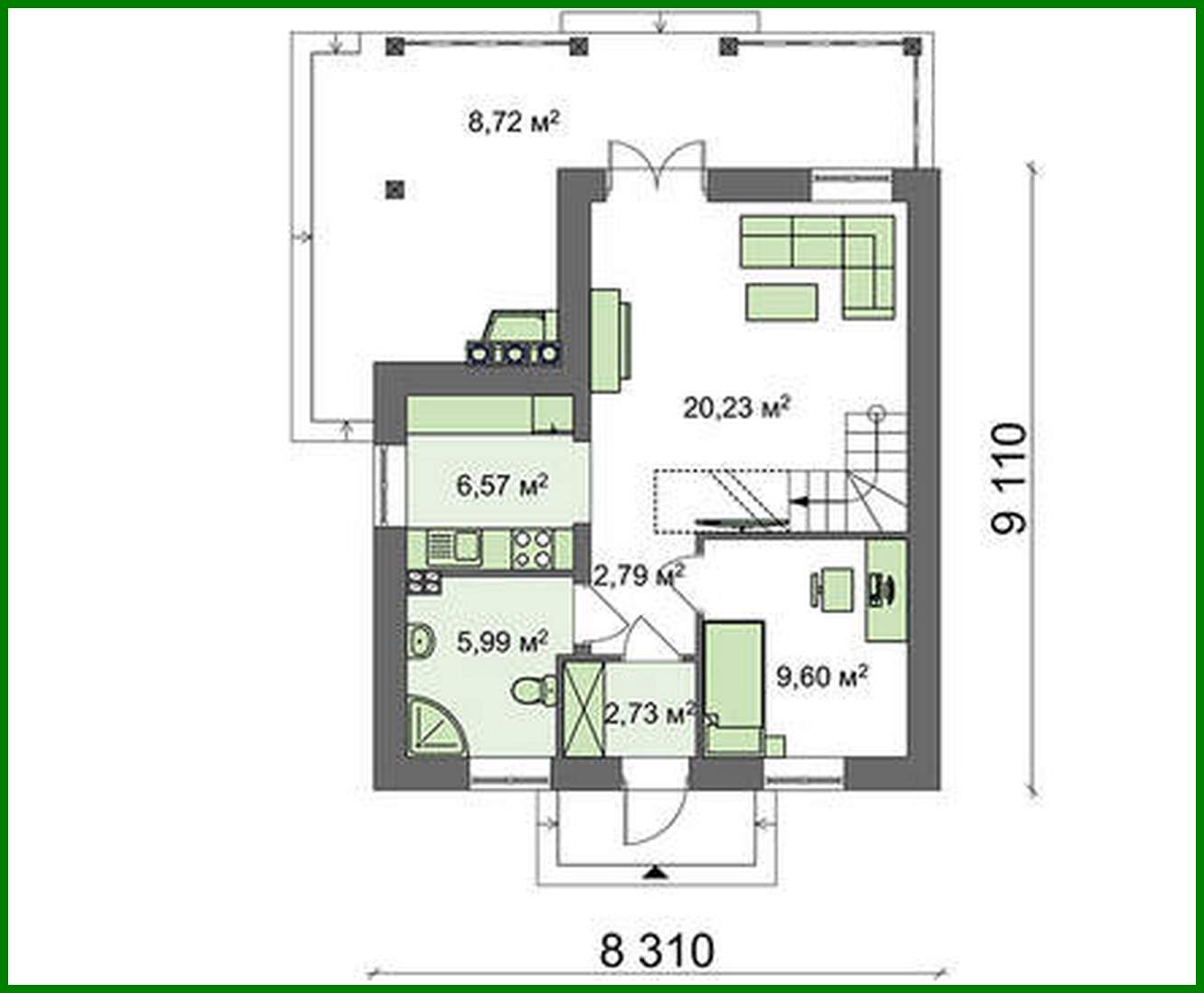
House project with an external fireplace Number of floors: 2 Total area: 111.21 m2 Living Area: 62.81 m2 House height: 7.80 m Ceiling Height: 2.80 m Roof Angle: 45 ° Roof area: 155.00 m2 Cubic capacity: 291.80 m3 Number of bedrooms: 3 Number of bathrooms: 2 Minimum plot size (length): 16.88 m Minimum plot size (width): 15.08 m Materials: Walls: aerated concrete, ceramic blocks Overlap: monolithic overlap Roofing: metal tile, ceramic tile, bitumen Foundation: monolithic tape

Interested in this plan?

Contact us to get full blueprints, construction estimate, or adapt this plan to your plot and needs.

Request more information

Visualization gallery